20 пъти повече обяви от собственици

Събираме обяви от най-големите портали

Различаваме брокера от собственика по телефонния номер

Показваме как се е променяла цената

Премахваме дублиращите се обяви

Двустаен апартамент в кв. Малинова Долина № ********

Област София-град, гр. София, Малинова долина
  • Обект BG-1313734743
  • добавен:
  • актуализиран:
снимка - Двустаен апартамент в кв. Малинова Долина № ******** снимка - Двустаен апартамент в кв. Малинова Долина № ******** снимка - Двустаен апартамент в кв. Малинова Долина № ******** снимка - Двустаен апартамент в кв. Малинова Долина № ********
  • Пълен размер
  • Търсете подобни
снимка - Двустаен апартамент в кв. Малинова Долина № ******** снимка - Двустаен апартамент в кв. Малинова Долина № ******** снимка - Двустаен апартамент в кв. Малинова Долина № ******** снимка - Двустаен апартамент в кв. Малинова Долина № ********

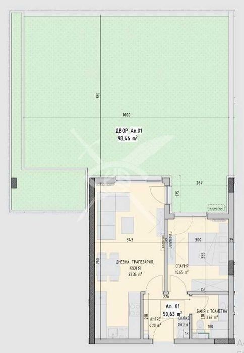
Компания 'ЕКС' представя на Вашето внимание двустаен апартамент в един от най-бързоразвиващите се райони на София- Малинова долина. МЕСТОПОЛОЖЕНИЕ: В близост до спирки на градски транспорт, училище, магазини от всякакъв тип, основни пътни артерии. СТРОИТЕЛСТВО: Апартаментът е ситуиран на 1-ви етаж в нова тухлена сграда с очакван АКТ 16 до края на 2025 г. РАЗПРЕДЕЛЕНИЕ: Жилището разполага с площ от 157кв. м. разпределена във входно антре, дневна с кухненски бокс, спалня, баня с тоалетна и дворно място от 98 кв. м. СЪСТОЯНИЕ: На шпакловка и замазка. Заповядайте да Ви го покажем. Използвайки нашите услуги Вие ще превърнете закупуването на новия си дом в едно приятно изживяване, ще получите персонален консултант, съдействие при кандидатстване за кредит от всички банки в България, интериорни дизайнери и екип, който да се погрижи за нужните документи по Вашата сделка. На Ваше разположение сме всеки ден, от понеделник до неделя от 09:00 до 20:00ч. Възползвайте се от безплатна консултация в наш офис, където ще ви спестим време и ще ви запознаем с всички актуални имоти в България, отговарящи на Вашето търсене. Свържете се с нас на 08*********90 или на 08*********57 и цитирайте кода към имота: ********

Местоположение на картата, полезни места и маршрути

Обекти наблизо

Област София-град, гр. София, Малинова долина
Добави към предпочитани 2-стаен в София-Малинова Долина площ 57м2 цена 136630€
  • 26 722 505 136 630 лв
  • 57 m²
Област София-град, гр. София, Малинова долина
Област София-град, гр. София, Малинова долина
Добави към предпочитани Двустаен апартамент № 38483, Малинова долина
  • 32 838 386 167 900 лв
  • 73 m²
Област София-град, гр. София, Малинова долина
Област София-град, гр. София, Малинова долина
Добави към предпочитани Двустаен апартамент в затворен комплекс В СТРОЕЖ в ж. к. Малинова доли
  • 26 841 811 137 240 лв
  • 68 m²
Област София-град, гр. София, Малинова долина
Област София-град, гр. София, Малинова долина
Добави към предпочитани 2-стаен в София-Малинова Долина площ 96
  • 33 053 527 169 000 лв
  • 96 m²
Област София-град, гр. София, Малинова долина