20 пъти повече обяви от собственици

Събираме обяви от най-големите портали

Различаваме брокера от собственика по телефонния номер

Показваме как се е променяла цената

Премахваме дублиращите се обяви

ЕРА Фаворит предлага за продажба интересен двустаен апартамент с в Хад

Област София-град, гр. София, Хаджи Димитър
  • Обект BG-1352375587
  • добавен:
  • актуализиран:
снимка - ЕРА Фаворит предлага за продажба интересен двустаен апартамент с в Хад снимка - ЕРА Фаворит предлага за продажба интересен двустаен апартамент с в Хад снимка - ЕРА Фаворит предлага за продажба интересен двустаен апартамент с в Хад
  • Пълен размер
  • Търсете подобни
снимка - ЕРА Фаворит предлага за продажба интересен двустаен апартамент с в Хад снимка - ЕРА Фаворит предлага за продажба интересен двустаен апартамент с в Хад снимка - ЕРА Фаворит предлага за продажба интересен двустаен апартамент с в Хад

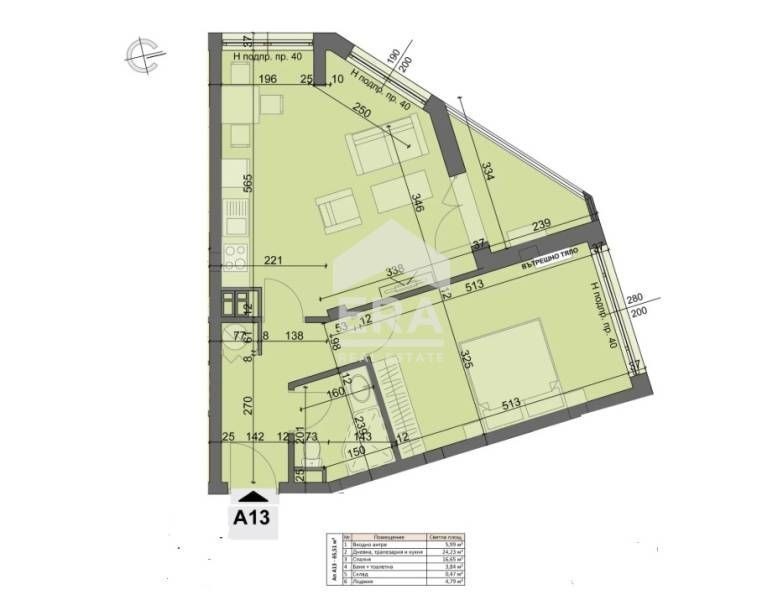
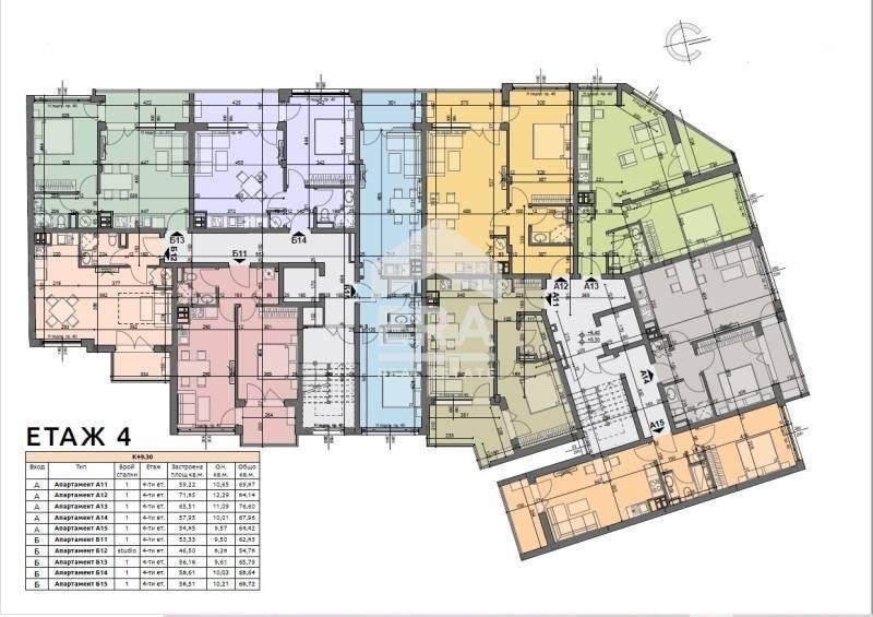
ЕРА Фаворит предлага за продажба двустаен апартамент с оригинално разпределение, който се намира в новострояща се сграда в ж. к. Хаджи Димитър и се състои от: входно антре с коридор, дневна с кухненски бокс и трапезария - с излаз на балкон, спалня, баня с тоалетна. Апартаментът има интересна амфитеатрална форма, като изложението на спалнята е северно, а на дневната - на север и запад. Сградата представлява модерен архитектурен проект, който се състои от два входа на девет етажа. Фасадата ще бъде изградена по съвременна качествена технология, изпълнена по прецизен начин. Топлоизолацията е с дебелина 12 см., ще бъдат монтирани безшумни асансьори, а отоплението е предвидено да бъде на климатици със сплит система, като ще има монтирано тяло във всяка стая. Сградата е на акт 14, което дава възможност в покупката да се включат потенциални купувачи с банков кредит. Цените няма да бъдат актуализирани от подписването на предварителен договор до получаването на разрешение за ползване - акт 16. Допълнително могат да бъдат закупени подземни паркоместа на цена 25000 Евро и гаражи на 45000 Евро. Удостоверение за завършен груб строеж предстои да бъде издадено до края на 02.2026 г. Акт 15 - до края на м. Ноември 2026 г. Акт 16 - в първите месеци на 2027 г. Агенция ЕРА Фаворит е член на НСНИ и администратор на лични данни. Преди огледа се провежда среща в нашия офис, за да се запознаем с изискванията Ви и за да оформим документи съгласно ЗЗД и ЗМИП. По време на огледа се подписва Протокол за оглед. За този имот се дължи комисиона към агенцията. Предлагаме Ви юридическо съдействие през целия процес на покупката. Предлагаме безплатна индивидуална консултация с кредитен консултант от CREDITERA - регистриран финансов брокер към БНБ. Конкурентни условия! Всеки ЕРА офис е с независимо управление и собственост! Оферта №7200309

Местоположение на картата

Обекти наблизо

Област София-град, гр. София, Хаджи Димитър
Добави към предпочитани Тристаен, за продажба, ж. к. Хаджи Димитър
  • 198 500 €
  • 92 m²
Област София-град, гр. София, Хаджи Димитър
Област София-град, гр. София, Хаджи Димитър
Добави към предпочитани Тристаен апартамент в ж. к. Хаджи Димитър № 951-27887
  • 297 689 €
  • 119 m²
Област София-град, гр. София, Хаджи Димитър
Област София-град, гр. София, Лозенец
Добави към предпочитани Двустаен апартамент до Метростанция „Хаджи Димитър“
  • 125 000 €
  • 48 m²
Област София-град, гр. София, Лозенец
Област София-град, гр. София, Хаджи Димитър
Добави към предпочитани ЕРА Фаворит продава разкошен тристаен апартамент в Хаджи Димитър
  • 265 000 €
  • 108 m²
Област София-град, гр. София, Хаджи Димитър