165 обекта

Тристаен - Изгрев Област Бургас, гр. Бургас, Изгрев
215 000 €
2 009 € за м²
3-стаен 107 m² 4/12 ет

Компания Х представя на Вашето внимание тристаен апартамент в квартал Изгрев МЕСТОПОЛОЖЕНИЕ: Изгрев е един от най-предпочитаните и добре развити квартали на Бургас, разположен в североизточната част на града. Районът се отличава с тиха жилищна среда, простор между сградите и богато озеленяване, което го прави изключително подходящ за постоянно живеене. РАПРЕДЕЛЕНИЕ: Апартаментът разполага с площ от 107 кв. м., функционално разпределени в 2 спални, хол с кухненски бокс, антре и санитарен възел, мокро помещение и тераса. СЪСТОЯНИЕ: Жилището се предлага в строеж, което предлага на новите собственици да създадат своя нов дом придавайки му индивидуалност и стил, чрез собствен почерк. Заповядайте да Ви го покажем. Използвайки нашите услуги Вие ще превърнете закупуването на новия си дом в едно приятно изживяване, ще получите персонален консултант, съдействие при кандидатстване за кредит от всички банки в България, интериорни дизайнери и екип, който да се погрижи за нужните документи по Вашата сделка. На Ваше разположение сме всеки ден, от понеделник до неделя от 09:00 до 20:00ч. Възползвайте се от безплатна консултация в наш офис, където ще ви спестим време и ще ви запознаем с всички актуални имоти в България, отговарящи на Вашето търсене. Нужен Ви е кода към имота: Сграда 1288 - 36763

Предлагаме светъл и просторен двустаен апартамент в престижния комплекс Реджина Маре
Предлагаме светъл и просторен двустаен апартамент в престижния комплекс Реджина Маре Област Бургас, гр. Царево
80 000 €
1 096 € за м²
2-стаен 73 m² 5/5 ет

Двустаен в красив комплекс в Царево Предлагаме светъл и просторен двустаен апартамент в престижния комплекс „Реджина Маре“, гр. Царево, с красива гледка. Жилището е с площ 72 кв. м, разположено на 5-ти етаж, и включва просторна дневна и спалня с излаз към тераса, както и баня с WC. Комплексът предлага отлични удобства - басейн, СПА, фитнес, ресторант, лоби бар, магазин и поддържани общи части, както и безплатен паркинг за собствениците. Такса поддръжка: 14 €/кв. м с ДДС. ID на имот 38939

Едностаен апартамент БЕЗ ТАКСА ПОДДРЪЖКА в гр. Царево
Едностаен апартамент БЕЗ ТАКСА ПОДДРЪЖКА в гр. Царево Област Бургас, гр. Царево
47 500 €
1 484 € за м²
1-стаен 32 m² 2/4 ет

Предлагаме обзаведен едностаен апартамент в жилищна сграда БЕЗ ТАКСА ПОДДРЪЖКА в гр. Царево. Жилището е с площ 32 кв. м и се намира на 2-ри етаж. Апартаментът се състои от: антре, хол с кухненски бокс, баня с тоалетна и душ, тераса. Към имота има мазе с площ 4.40 кв. м, разположено в сутеренния етаж на сградата. Жилището е напълно обзаведено и готово за нанасяне или за отдаване като инвестиционен имот. Жилищната сграда разполага с: ограничен достъп, техническа поддръжка, поддръжка на общите части, озеленени площи др. Сградата има Акт. 16. Сградата се поддържа. Жилищната сграда се намира в близост до морето. Около жилищната сграда има добре изградена инфраструктура. Наблизо има: супермаркети, магазини, аптека, спирка на автобуса, ресторанти, заведения, плаж и други развлечения. Разполагаме с много и разнообразни имоти по цялото Черноморие. За повече информация, свържете се с нас!

Тристаен апартамент в Лозенец 91894
Тристаен апартамент в Лозенец 91894 Област Бургас, с. Лозенец
181 508 €
1 149 € за м²
3-стаен 158 m² 3/5 ет

Компания 'Х' представя на Вашето внимание тристаен апартамент в Лозенец. МЕСТОПОЛОЖЕНИЕ: Лозенец съчетава близост до морето с красива природа и спокойна атмосфера. Разположен е близо до Странджа планина и природния парк, което го прави подходящ както за морски, така и за еко- и планински туризъм. Курортът е предпочитан заради чистите си плажове, уютната обстановка. Лозенец е леснодостъпен от Бургас и съчетава тишина и природа. РАПРЕДЕЛЕНИЕ: Разполага с площ от 158кв. м., разгърната в следното функционално разпределение: хол-трапезария с кухненска част; 2 спални; 2 бани с тоалетна. тераси с изглед СЪСТОЯНИЕ: За удобството и комфорта на на новите собственици, жилището се предлага напълно обзаведено. Разполага с всичко необходимо за едно домакинство. Заповядайте да Ви го покажем. Използвайки нашите услуги Вие ще превърнете закупуването на новия си дом в едно приятно изживяване, ще получите персонален консултант, съдействие при кандидатстване за кредит от всички банки в България, интериорни дизайнери и екип, който да се погрижи за нужните документи по Вашата сделка. На Ваше разположение сме всеки ден, от понеделник до неделя от 09:00 до 20:00ч. Възползвайте се от безплатна консултация в наш офис, където ще ви спестим време и ще ви запознаем с всички актуални имоти в България, отговарящи на Вашето търсене. Свържете се с нас на 08******90 или на 08******83 и цитирайте кода към имота: 91894

Четиристаен апартамент в Хоризонт! 102389
Четиристаен апартамент в Хоризонт! 102389 Област Бургас, гр. Бургас, Изгрев
350 000 €
2 059 € за м²
4-стаен 170 m² 3/6 ет

Компания Х представя на Вашето внимание Четиристаен апартамент в Хоризонт! МЕСТОПОЛОЖЕНИЕ: Съвременен, подреден и изпълнен с усещане за простор, квартал Хоризонт се откроява като едно от новите лица на Бургас. Тук градът диша по-леко - широки улици, модерни сгради и светлина, която придава особено спокойствие на ежедневието. Локацията му е истинско предимство - достатъчно близо до динамиката на центъра, но и достатъчно далеч, за да запази тишината и уюта. Всяко излизане от дома води бързо към ключови точки на града, а усещането за ред и ново начало прави квартала особено привлекателен. Хоризонт не е просто място за живеене - той е обещание за по-спокоен, по-светъл и балансиран градски живот, където комфортът и модерността вървят ръка за ръка. РАЗПРЕДЕЛЕНИЕ: Жилището разполага с площ от 170 кв. м., разгърната в следното функционално разпределение: хол с кухненски бокс, три спални, гардеробна, две бани и две тоалетни, мокро помещение, склад с площ от 10 кв. м., тераса. СЪСТОЯНИЕ: Жилището се предлага необзаведено, което дава възможност на новите собственици да създадат своя нов дом, придавайки му индивидуалност и стил чрез собствен почерк. Заповядайте да Ви го покажем. Използвайки нашите услуги Вие ще превърнете закупуването на новия си дом в едно приятно изживяване, ще получите персонален консултант, съдействие при кандидатстване за кредит от всички банки в България, интериорни дизайнери и екип, който да се погрижи за нужните документи по Вашата сделка. На Ваше разположение сме всеки ден, от понеделник до неделя от 09:00 до 20:00ч. Възползвайте се от безплатна консултация в наш офис, където ще ви спестим време и ще ви запознаем с всички актуални имоти в България, отговарящи на Вашето търсене. Свържете се с нас и цитирайте кода към имота: 102389

Двустаен апартамент с ГЛЕДКА МОРЕ в к-с „Примеа Бийч Резиденс“, Царево
Двустаен апартамент с ГЛЕДКА МОРЕ в к-с „Примеа Бийч Резиденс“, Царево Област Бургас, гр. Царево
115 000 €
1 554 € за м²
2-стаен 74 m² 2/5 ет

Предлагаме просторен обзаведен двустаен апартамент с ФРОНТАЛНА ГЛЕДКА МОРЕ в к-с „Примеа Бийч Резиденс“ (Primea Beach Residence), гр. Царево. Имотът е разположен на ПЪРВА ЛИНИЯ МОРЕ, на 20 м от плаж Нестинарка. Жилището е с площ 74 кв. м и се намира на 2-ри етаж. Апартаментът се състои от: антре, хол с кухненски бокс, спалня, баня с тоалетна и душ кабина, тераса с изглед към морето. Жилището е напълно обзаведено и готово за нанасяне или за отдаване като инвестиционен имот. Комплекс „Примеа Бийч Резиденс“ (Primea Beach Residence) разполага с: денонощна охрана, видеонаблюдение, ограничен достъп, техническа поддръжка, поддръжка на общите части, озеленени площи, паркинг, басейн с шезлонги около него и др. Сградата има Акт. 16 Сградата се поддържа. Комплексът се намира на първа линия море, на 20 м от морето. Около комплекса има добре изградена инфраструктура. Наблизо има: супермаркети, магазини, ресторанти, заведения, плаж и др. Разполагаме с много и разнообразни имоти по цялото Черноморие. За повече информация, свържете се с нас!

Тристаен апартамент в Лозенец 68206
Тристаен апартамент в Лозенец 68206 Област Бургас, с. Лозенец
234 630 €
1 652 € за м²
3-стаен 142 m²

Компания Х представя на Вашето внимание тристаен апартамент в Лозенец. МЕСТОПОЛОЖЕНИЕ: Намира се в спокойна част на района, в близост до хранителен магазин и спирка на градски транспорт. Морето е на метри. СТРОИТЕЛСТВО: Апартаментът е разположен на първи етаж, тухла. РАЗПРЕДЕЛЕНИЕ: Жилището разполага с площ 142кв. м., състои се от хол с кухненски бокс, две спални, две бани с тоалетна и тераса. СЪСТОЯНИЕ: Имотът се предлага напълно обзаведен, готов за нанасяне или отдаване под наем, което го превръща в перфектната инвестиция! Заповядайте да Ви го покажем. Използвайки нашите услуги Вие ще превърнете закупуването на новия си дом в едно приятно изживяване, ще получите персонален консултант, съдействие при кандидатстване за кредит от всички банки в България, интериорни дизайнери и екип, който да се погрижи за нужните документи по Вашата сделка. На Ваше разположение сме всеки ден, от понеделник до неделя от 09:00 до 20:00ч. Възползвайте се от безплатна консултация в наш офис, където ще ви спестим време и ще ви запознаем с всички актуални имоти в България, отговарящи на Вашето търсене. Свържете се с нас и цитирайте кода към имота: 68206

Двустаен - Изгрев Област Бургас, гр. Бургас, Изгрев
91 575 €
1 501 € за м²
2-стаен 61 m² 2/8 ет

Компания Х представя на Вашето внимание Двустаен апартамент в Изгрев. МЕСТОПОЛОЖЕНИЕ: Намира се в спокойна част на района, в близост до хранителен магазин, както и спирки на градски транспорт. СТРОИТЕЛСТВО: Апартаментът е разположен на втори етаж, тухла. РАЗПРЕДЕЛЕНИЕ: Жилището разполага с площ 61,05 кв. м. с общите части, състои се от хол, дневна с кухненски бокс, спалня, баня с тоалетна, и тераса. СЪСТОЯНИЕ: Апартаментът се предлага на степен до ключ, което Ви дава възможността да го устроите по Ваш вкус и да го превърнете в мечтания дом! Заповядайте да Ви го покажем. Използвайки нашите услуги Вие ще превърнете закупуването на новия си дом в едно приятно изживяване, ще получите персонален консултант, съдействие при кандидатстване за кредит от всички банки в България, интериорни дизайнери и екип, който да се погрижи за нужните документи по Вашата сделка. На Ваше разположение сме всеки ден, от понеделник до неделя от 09:00 до 20:00ч. Възползвайте се от безплатна консултация в наш офис, където ще ви спестим време и ще ви запознаем с всички актуални имоти в България, отговарящи на Вашето търсене. Свържете се с нас и цитирайте кода към имота: 1014- 29654

Двустаен апартамент в Изгрев 919-26990
Двустаен апартамент в Изгрев 919-26990 Област Бургас, гр. Бургас, Изгрев
79 626 €
1 154 € за м²
2-стаен 69 m² 3/7 ет

Компания Х представя на Вашето внимание двустаен апартамент в Изгрев. МЕСТОПОЛОЖЕНИЕ: Намира се в спокойна част на района, в близост до всичко необходимо за еднно домакинство, както и спирки на градски транспорт и учебни заведения. СТРОИТЕЛСТВО: Апартаментът е разположен на трети етаж, тухла. РАЗПРЕДЕЛЕНИЕ: Жилището разполага с площ 69.24 кв. м., състои се от хол с кухненски бокс, спалня, баня с тоалетна, склад и тераса. СЪСТОЯНИЕ: Имотът се предлага както на тапа, така и на степен до ключ, което Ви дава възможността да го усторите по Ваш вкус и да го превърнете в мечтания дом! Заповядайте да Ви го покажем. Използвайки нашите услуги Вие ще превърнете закупуването на новия си дом в едно приятно изживяване, ще получите персонален консултант, съдействие при кандидатстване за кредит от всички банки в България, интериорни дизайнери и екип, който да се погрижи за нужните документи по Вашата сделка. На Ваше разположение сме всеки ден, от понеделник до неделя от 09:00 до 20:00ч. Възползвайте се от безплатна консултация в наш офис, където ще ви спестим време и ще ви запознаем с всички актуални имоти в България, отговарящи на Вашето търсене. Свържете се с нас на 08******90 или на 08******83 и цитирайте кода към имота: 919-26990.

Студио в комплекс „Саут Бийч“, на първа линия море, плаж Нестинарка
Студио в комплекс „Саут Бийч“, на първа линия море, плаж Нестинарка Област Бургас, гр. Царево
53 053 €
1 105 € за м²
1-стаен 48 m² 6/6 ет

ID 34193740 Цена: 53 053 евро + 3% от купувача Населено място: Царево Стаи: 1 Обща площ: 48.23 кв. м Етаж: 6 Такса поддръжка: 12 евро/кв. м годишно Етап на строителство: Акт 16 Схема на плащане: 2000 евро депозит, 100% плащане при подписване на нотариалния акт Предлагаме напълно обзаведено студио на 6-и етаж с гледка към парка. Хотел „Саут Бийч“ се намира в южната част на българския курортен град Царево, само на няколко крачки от морския бряг. Това е спокойно и уютно място, където човек може истински да се отпусне и да си почине от ежедневното напрежение. Сградите на хотела са заобиколени от зеленина, а на територията има просторен двор с басейни, шезлонги и зони за отдих. Ту.е. приятно да се правят слънчеви бани, да се плува или просто да се седи на сянка под дърветата с книга в ръка. Наблизо се намира пясъчен плаж с плавен вход във водата, удобен както за деца, така и за възрастни. Стаите и апартаментите в хотел „Саут Бийч“ са светли и просторни. Всеки разполага с балкон или тераса, а някои имат гледка към морето. Хотелът работи на база „all inclusive“, така че не е нужно да мислите за храната - всичко вече е приготвено и очаква гостите в ресторанта. За децата са предвидени отделен басейн, детска площадка и забавна анимация. Възрастните могат да спортуват, да се разхождат по крайбрежната алея или просто да се наслаждават на тишината. На разположение на гостите в хотела са още рецепция, бар, бизнес зала и безплатни паркоместа. „Саут Бийч“ е подходящ както за семейства и двойки, така и за всички, които търсят море, спокойствие и комфорт без излишен шум. Тук човек лесно може да се почувства като у дома си, само че до вълните и свежия морски въздух. Царево е уютен град в южната част на българското Черноморие, където планината среща морето, а природата радва със своята чистота и тишина. Това е място за хора, които искат почивка без суета и възможност да усетят истинска България - топла, гостоприемна и малко по-спокойна. Градът е разположен на два живописни залива, а плажовете тук са с мек пясък и кристално чиста вода. Има както поддържани зони с шезлонги и кафенета, така и диви кътчета, където може да останете насаме с природата. Водата край брега е спокойна и топла, подходяща дори за най-малките. Царево не е претоварен с туристи и тук лесно може да се открие спокойствие. Центърът на града е компактен, с уютни улички, малки магазинчета, ресторанти с морска кухня и пазари, където можете да купите плодове, мед и домашно вино. Заобиколен от зелени хълмове и гори, градът се намира в близост до природен парк „Странджа“. Оттук лесно можете да тръгнете на преход, на екскурзия или просто на разходка по пътеки с красиви гледки. Разстояние до летище Бургас: 77 км Разстояние до летище Варна: 202 км

Двустаен апартамент БЕЗ ТАКСА в кв. Хоризонт, гр. Бургас
Двустаен апартамент БЕЗ ТАКСА в кв. Хоризонт, гр. Бургас Област Бургас, гр. Бургас, Изгрев
100 000 €
1 563 € за м²
2-стаен 64 m² 3/6 ет

Предлагаме просторен необзаведен "до ключ" двустаен апартамент в новострояща се жилищна сграда БЕЗ ТАКСА в кв. Хоризонт, гр. Бургас. Жилището е с площ 64 кв. м и се намира на 3-ти етаж. Апартаментът се състои от: антре, хол с изводи за кухня, спалня, баня с тоалетна и душ, склад, тераса. Жилището се предлага необзаведено до ключ, с възможност за мебелиране по собствен вкус, подходящо както за сезонно, така и за целогодишно ползване. Жилищната сграда разполага с: контрол на достъпа, техническа поддръжка, поддръжка на общите части, озеленени площи, паркинг, детска площадка и др. Сградата е на етап строеж, ще получи Акт 16 в края на 2026 г. Сградата е БЕЗ ГОДИШНА ТАКСА ПОДДРЪЖКА. Жилищната сграда се намира в близост до мол Бургас Плаза и хипермаркет Метро. Около жилищната сграда има добре изградена инфраструктура. Наблизо има: голям супермаркет, магазини, мол, аптека, поликлиника, спирка на автобуса, ресторанти, заведения, бързи хранения и други развлечения. Разполагаме с много и разнообразни имоти по цялото Черноморие. За повече информация, свържете се с нас!

Едностаен апартамент в Лозенец 61091
Едностаен апартамент в Лозенец 61091 Област Бургас, с. Лозенец
58 000 €
1 706 € за м²
1-стаен 34 m² 2/4 ет

Компания Х представя на Вашето внимание едностаен апартамент в Лозенец. МЕСТОПОЛОЖЕНИЕ: Намира се в спокойна част на района, недалеч от хранителен магазин, както и на по-малко от десет минути пеша от морето. СТРОИТЕЛСТВО: Апартаментът е разположен на втори етаж, тухла. РАЗПРЕДЕЛЕНИЕ: Жилището разполага с площ 34кв. м., има тераса. СЪСТОЯНИЕ: Апартаментът се предлага на степен до ключ, което Ви дава възможността да го устроите по Ваш вкус! Заповядайте да Ви го покажем. Използвайки нашите услуги Вие ще превърнете закупуването на новия си дом в едно приятно изживяване, ще получите персонален консултант, съдействие при кандидатстване за кредит от всички банки в България, интериорни дизайнери и екип, който да се погрижи за нужните документи по Вашата сделка. На Ваше разположение сме всеки ден, от понеделник до неделя от 09:00 до 20:00ч. Възползвайте се от безплатна консултация в наш офис, където ще ви спестим време и ще ви запознаем с всички актуални имоти в България, отговарящи на Вашето търсене. Свържете се с нас и цитирайте кода към имота: 61091

Двустаен апартамент в Изгрев 919-28177
Двустаен апартамент в Изгрев 919-28177 Област Бургас, гр. Бургас, Изгрев
84 226 €
1 154 € за м²
2-стаен 73 m² 7/7 ет

Компания Х представя на Вашето внимание двустаен апартамент в Изгрев. МЕСТОПОЛОЖЕНИЕ: Намира се в спокойна част на района, в близост до всичко необходимо за еднно домакинство, както и спирки на градски транспорт и учебни заведения. СТРОИТЕЛСТВО: Апартаментът е разположен на седми етаж, тухла. РАЗПРЕДЕЛЕНИЕ: Жилището разполага с площ 73.24 кв. м., състои се от хол с кухненски бокс, спалня, баня с тоалетна, склад и тераса. СЪСТОЯНИЕ: Имотът се предлага както на тапа, така и на степен до ключ, което Ви дава възможността да го усторите по Ваш вкус и да го превърнете в мечтания дом! Заповядайте да Ви го покажем. Използвайки нашите услуги Вие ще превърнете закупуването на новия си дом в едно приятно изживяване, ще получите персонален консултант, съдействие при кандидатстване за кредит от всички банки в България, интериорни дизайнери и екип, който да се погрижи за нужните документи по Вашата сделка. На Ваше разположение сме всеки ден, от понеделник до неделя от 09:00 до 20:00ч. Възползвайте се от безплатна консултация в наш офис, където ще ви спестим време и ще ви запознаем с всички актуални имоти в България, отговарящи на Вашето търсене. Свържете се с нас на 08******90 или на 08******83 и цитирайте кода към имота: 919 - 28177.

Тристаен - Изгрев Област Бургас, гр. Бургас, Изгрев
165 000 €
1 557 € за м²
3-стаен 106 m² 5/8 ет

Компания Х представя на Вашето внимание Тристаен апартамент в Изгрев. МЕСТОПОЛОЖЕНИЕ: Намира се в спокойна част на района, в близост до хранителен магазин, както и спирки на градски транспорт. СТРОИТЕЛСТВО: Апартаментът е разположен на пети етаж, тухла. РАЗПРЕДЕЛЕНИЕ: Жилището разполага с площ 106,41 кв. м. с общите части, състои се от хол, дневна с кухненски бокс, три спални, баня с тоалетна, и тераса. СЪСТОЯНИЕ: Апартаментът се предлага на степен до ключ, което Ви дава възможността да го устроите по Ваш вкус и да го превърнете в мечтания дом! Заповядайте да Ви го покажем. Използвайки нашите услуги Вие ще превърнете закупуването на новия си дом в едно приятно изживяване, ще получите персонален консултант, съдействие при кандидатстване за кредит от всички банки в България, интериорни дизайнери и екип, който да се погрижи за нужните документи по Вашата сделка. На Ваше разположение сме всеки ден, от понеделник до неделя от 09:00 до 20:00ч. Възползвайте се от безплатна консултация в наш офис, където ще ви спестим време и ще ви запознаем с всички актуални имоти в България, отговарящи на Вашето търсене. Свържете се с нас и цитирайте кода към имота: 1014-29653

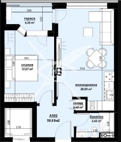
Двустаен апартамент в Изгрев 799-23626
Двустаен апартамент в Изгрев 799-23626 Област Бургас, гр. Бургас, Изгрев
80 000 €
1 379 € за м²
2-стаен 58 m² 8/9 ет

Компания Х представя на Вашето внимание двустаен апартамент в Изгрев. МЕСТОПОЛОЖЕНИЕ: Намира се в спокойна част на района, в близост до всичко необходимо за еднно домакинство, както и спирки на градски транспорт и учебни заведения. СТРОИТЕЛСТВО: Апартаментът е разположен на осми етаж, тухла. РАЗПРЕДЕЛЕНИЕ: Жилището разполага с площ 58.88 кв. м., състои се от хол с кухненски бокс, спалня, баня с тоалетна склад и тераса. СЪСТОЯНИЕ: Имотът се предлага както на тапа, така и на степен до ключ, което Ви дава възможността да го усторите по Ваш вкус и да го превърнете в мечтания дом! Заповядайте да Ви го покажем. Използвайки нашите услуги Вие ще превърнете закупуването на новия си дом в едно приятно изживяване, ще получите персонален консултант, съдействие при кандидатстване за кредит от всички банки в България, интериорни дизайнери и екип, който да се погрижи за нужните документи по Вашата сделка. На Ваше разположение сме всеки ден, от понеделник до неделя от 09:00 до 20:00ч. Възползвайте се от безплатна консултация в наш офис, където ще ви спестим време и ще ви запознаем с всички актуални имоти в България, отговарящи на Вашето търсене. Свържете се с нас на 08******90 или на 08******83 и цитирайте кода към имота: 799 - 23626.

Двустаен апартамент в Изгрев! 103350
Двустаен апартамент в Изгрев! 103350 Област Бургас, гр. Бургас, Изгрев
228 000 €
3 403 € за м²
2-стаен 67 m² 12/12 ет

Компания Х представя на Вашето внимание Двустаен апартамент в Изгрев! МЕСТОПОЛОЖЕНИЕ: Изгрев е близо до Морската градина и морето, той носи лекота в ежедневието - повече въздух, повече светлина, повече спокойствие. В същото време всичко важно е на една ръка разстояние, а градът остава лесно достъпен. Тук ритъмът е по-тих, пространството - по-широко, а времето сякаш стига за всичко. Място, което естествено се превръща в дом. РАЗПРЕДЕЛЕНИЕ: Жилището разполага с площ от 67 кв. м., разгърната в следното функционално разпределение: хол с кухненски бокс, спалня, баня и тоалетна, мокро помещение, тераса. СЪСТОЯНИЕ: Жилището се предлага необзаведено, което дава възможност на новите собственици да създадат своя нов дом, придавайки му индивидуалност и стил чрез собствен почерк. Заповядайте да Ви го покажем. Използвайки нашите услуги Вие ще превърнете закупуването на новия си дом в едно приятно изживяване, ще получите персонален консултант, съдействие при кандидатстване за кредит от всички банки в България, интериорни дизайнери и екип, който да се погрижи за нужните документи по Вашата сделка. На Ваше разположение сме всеки ден, от понеделник до неделя от 09:00 до 20:00ч. Възползвайте се от безплатна консултация в наш офис, където ще ви спестим време и ще ви запознаем с всички актуални имоти в България, отговарящи на Вашето търсене. Свържете се с нас и цитирайте кода към имота: 103350

Тристаен апартамент 919-26978
Тристаен апартамент 919-26978 Област Бургас, гр. Бургас, Изгрев
109 128 €
1 213 € за м²
3-стаен 90 m² 2/7 ет

Компания Х представя на Вашето внимание тристаен апартамент в Изгрев. МЕСТОПОЛОЖЕНИЕ: Намира се в спокойна част на района, в близост до всичко необходимо за еднно домакинство, както и спирки на градски транспорт и учебни заведения. СТРОИТЕЛСТВО: Апартаментът е разположен на втори етаж, тухла. РАЗПРЕДЕЛЕНИЕ: Жилището разполага с площ 90.94 кв. м., състои се от хол с кухненски бокс, две спални, баня с тоалетна, тоалетна, склад и тераса. СЪСТОЯНИЕ: Имотът се предлага както на тапа, така и на степен до ключ, което Ви дава възможността да го усторите по Ваш вкус и да го превърнете в мечтания дом! Заповядайте да Ви го покажем. Използвайки нашите услуги Вие ще превърнете закупуването на новия си дом в едно приятно изживяване, ще получите персонален консултант, съдействие при кандидатстване за кредит от всички банки в България, интериорни дизайнери и екип, който да се погрижи за нужните документи по Вашата сделка. На Ваше разположение сме всеки ден, от понеделник до неделя от 09:00 до 20:00ч. Възползвайте се от безплатна консултация в наш офис, където ще ви спестим време и ще ви запознаем с всички актуални имоти в България, отговарящи на Вашето търсене. Свържете се с нас на 08******90 или на 08******83 и цитирайте кода към имота: 919-26978

Едностаен апартамент БЕЗ ТАКСА в кв. Хоризонт, гр. Бургас
Едностаен апартамент БЕЗ ТАКСА в кв. Хоризонт, гр. Бургас Област Бургас, гр. Бургас, Изгрев
76 800 €
1 536 € за м²
1-стаен 50 m² 3/6 ет

Предлагаме просторен необзаведен до ключ едностаен апартамент в новострояща се жилищна сграда БЕЗ ТАКСА в кв. Хоризонт, гр. Бургас. Жилището е с площ 50 кв. м и се намира на 3-ти етаж. Апартаментът се състои от: антре, всекидневна с изводи за кухня, баня с тоалетна и душ, тераса. Жилището се предлага необзаведено до ключ, с възможност за мебелиране по собствен вкус, подходящо както за сезонно, така и за целогодишно ползване. Жилищната сграда разполага с: контрол на достъпа, техническа поддръжка, поддръжка на общите части, озеленени площи, паркинг, детска площадка и др. Сградата е на етап строеж, ще получи Акт 16 в края на 2026 г. Сградата е БЕЗ ГОДИШНА ТАКСА ПОДДРЪЖКА. Жилищната сграда се намира в близост до мол Бургас Плаза и хипермаркет Метро. Около жилищната сграда има добре изградена инфраструктура. Наблизо има: голям супермаркет, магазини, мол, аптека, поликлиника, спирка на автобуса, ресторанти, заведения, бързи хранения и други развлечения. Разполагаме с много и разнообразни имоти по цялото Черноморие. За повече информация, свържете се с нас!

Апартамент с 1 спалня в комплекс „Саут Бийч“, на първа линия море
Апартамент с 1 спалня в комплекс „Саут Бийч“, на първа линия море Област Бургас, гр. Царево
184 887 €
1 868 € за м²
2-стаен 99 m² 6/6 ет

ID 34193736 Цена: 184 887 евро + 3% от купувача Населено място: Царево Стаи: 2 Обща площ: 98.87 кв. м Етаж: 6 Такса поддръжка: 12 евро/кв. м годишно Етап на строителство: Акт 16 Схема на плащане: 2000 евро депозит, 100% плащане при подписване на нотариалния акт Предлагаме напълно обзаведен апартамент с 1 спалня на 6-и етаж с гледка към морето. Хотел „Саут Бийч“ се намира в южната част на българския курортен град Царево, само на няколко крачки от морския бряг. Това е спокойно и уютно място, където човек може истински да се отпусне и да си почине от ежедневното напрежение. Сградите на хотела са заобиколени от зеленина, а на територията има просторен двор с басейни, шезлонги и зони за отдих. Ту.е. приятно да се правят слънчеви бани, да се плува или просто да се седи на сянка под дърветата с книга в ръка. Наблизо се намира пясъчен плаж с плавен вход във водата, удобен както за деца, така и за възрастни. Стаите и апартаментите в хотел „Саут Бийч“ са светли и просторни. Всеки разполага с балкон или тераса, а някои имат гледка към морето. Хотелът работи на база „all inclusive“, така че не е нужно да мислите за храната - всичко вече е приготвено и очаква гостите в ресторанта. За децата са предвидени отделен басейн, детска площадка и забавна анимация. Възрастните могат да спортуват, да се разхождат по крайбрежната алея или просто да се наслаждават на тишината. На разположение на гостите в хотела са още рецепция, бар, бизнес зала и безплатни паркоместа. „Саут Бийч“ е подходящ както за семейства и двойки, така и за всички, които търсят море, спокойствие и комфорт без излишен шум. Тук човек лесно може да се почувства като у дома си, само че до вълните и свежия морски въздух. Царево е уютен град в южната част на българското Черноморие, където планината среща морето, а природата радва със своята чистота и тишина. Това е място за хора, които искат почивка без суета и възможност да усетят истинска България - топла, гостоприемна и малко по-спокойна. Градът е разположен на два живописни залива, а плажовете тук са с мек пясък и кристално чиста вода. Има както поддържани зони с шезлонги и кафенета, така и диви кътчета, където може да останете насаме с природата. Водата край брега е спокойна и топла, подходяща дори за най-малките. Царево не е претоварен с туристи и тук лесно може да се открие спокойствие. Центърът на града е компактен, с уютни улички, малки магазинчета, ресторанти с морска кухня и пазари, където можете да купите плодове, мед и домашно вино. Заобиколен от зелени хълмове и гори, градът се намира в близост до природен парк „Странджа“. Оттук лесно можете да тръгнете на преход, на екскурзия или просто на разходка по пътеки с красиви гледки. Разстояние до летище Бургас: 77 км Разстояние до летище Варна: 202 км

Двустаен апартамент в Лозенец 68221
Двустаен апартамент в Лозенец 68221 Област Бургас, с. Лозенец
138 254 €
1 646 € за м²
2-стаен 84 m² 4/5 ет

Компания Х представя на Вашето внимание двустаен апартамент в Лозенец. МЕСТОПОЛОЖЕНИЕ: Намира се в спокойна част на района, в близост до хранителен магазин и спирка на градски транспорт. Морето е на метри. СТРОИТЕЛСТВО: Апартаментът е разположен на четвърти етаж, тухла. РАЗПРЕДЕЛЕНИЕ: Жилището разполага с площ 84кв. м., състои се от хол с кухненски бокс, спалня, баня с тоалетна и тераса с гледка море. СЪСТОЯНИЕ: Имотът се предлага напълно обзаведен, готов за нанасяне или отдаване под наем, което го превръща в перфектната инвестиция! Заповядайте да Ви го покажем. Използвайки нашите услуги Вие ще превърнете закупуването на новия си дом в едно приятно изживяване, ще получите персонален консултант, съдействие при кандидатстване за кредит от всички банки в България, интериорни дизайнери и екип, който да се погрижи за нужните документи по Вашата сделка. На Ваше разположение сме всеки ден, от понеделник до неделя от 09:00 до 20:00ч. Възползвайте се от безплатна консултация в наш офис, където ще ви спестим време и ще ви запознаем с всички актуални имоти в България, отговарящи на Вашето търсене. Свържете се с нас и цитирайте кода към имота: 68221

Отворете картата Карта