3 093 обекта

Объект BG-1079178743 не найден. Возможно, он удалён по истечению срока давности, либо находится в процессе публикации.

Двустаен апартамент в кв. Остромила! Ново строителство! Област Пловдив, гр. Пловдив, Остромила
75 774 €
1 166 € за м²
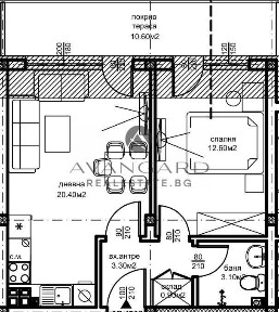
2-стаен 65 m² 3/3 ет

Компания „Х“ представя на Вашето внимание двустаен апартамент в кв. Остромила. МЕСТОПОЛОЖЕНИЕ: Кварталът разполага с добре развита инфраструктура, обществен транспорт, магазини, училища, детски градини и други удобства. В околността на квартала се намират няколко парка и зелени площи, които предлагат възможности за отдих и разходки на открито. Кварталът е подходящ за семейства с деца, като предлага спокойна и сигурна обстановка за живеене. СТРОИТЕЛСТВО: Разположен на 3-ти етаж в сграда ново строителство. РАЗПРЕДЕЛЕНИЕ: Жилището разполага с площ от 65 кв. м., състои се от входно антре, дневна с трапезария и кухненски бокс, спалня и тераса, към апартамента е и изба №17. СЪСТОЯНИЕ: В строеж Заповядайте да Ви го покажем. Използвайки нашите услуги Вие ще превърнете закупуването на новия си дом в едно приятно изживяване, ще получите персонален консултант, съдействие при кандидатстване за кредит от всички банки в България, интериорни дизайнери и екип, който да се погрижи за нужните документи по Вашата сделка. На Ваше разположение сме всеки ден, от понеделник до неделя от 09:00 до 20:00ч. Възползвайте се от безплатна консултация в наш офис, където ще ви спестим време и ще ви запознаем с всички актуални имоти в България, отговарящи на Вашето търсене. Свържете се с нас на 088777990 или на 08******90 и цитирайте кода към имота: 1038-29916

Тристаен апартамент в Кършияка Област Пловдив, гр. Пловдив, Кършияка
119 735 €
1 162 € за м²
3-стаен 103 m² 15/16 ет

Компания „X“ представя на Вашето внимание тристаен апартамент в кв. Кършияка. МЕСТОПОЛОЖЕНИЕ: Квартал Кършияка е един от най-големите и популярни квартали в град Пловдив. Кършияка е жилищен и търговски квартал, където може да се намерят множество жилищни сгради, магазини, ресторанти, кафенета, учебни заведения, паркове и други удобства. СТРОИТЕЛСТВО: Апартаментът се намира на 15-ти етаж в сграда ново строителство. РАЗПРЕДЕЛЕНИЕ: Жилището разполага с площ от 103 кв. м. разпределена по следния начин: предверие, дневна с трапезария и кухненски бокс, две спални, баня с тоалетня, самостоятелна тоалетна и тераса. СЪСТОЯНИЕ: В строеж. Заповядайте да Ви го покажем. Използвайки нашите услуги Вие ще превърнете закупуването на новия си дом в едно приятно изживяване, ще получите персонален консултант, съдействие при кандидатстване за кредит от всички банки в България, интериорни дизайнери и екип, който да се погрижи за нужните документи по Вашата сделка. На Ваше разположение сме всеки ден, от понеделник до неделя от 09:00 до 20:00ч. Възползвайте се от безплатна консултация в наш офис, където ще ви спестим време и ще ви запознаем с всички актуални имоти в България, отговарящи на Вашето търсене. Свържете се с нас на 08******90 или на 08******90 и цитирайте кода към имота: 1049- 30697

Тристаен апартамент в Остромила! Ново строителство! Област Пловдив, гр. Пловдив, Остромила
91 550 €
1 254 € за м²
2-стаен 73 m² 3/6 ет

Компания „Х“ представя на Вашето внимание двустаен апартамент в кв. Остромила. МЕСТОПОЛОЖЕНИЕ: Кварталът разполага с добре развита инфраструктура, обществен транспорт, магазини, училища, детски градини и други удобства. В околността на квартала се намират няколко парка и зелени площи, които предлагат възможности за отдих и разходки на открито. Кварталът е подходящ за семейства с деца, като предлага спокойна и сигурна обстановка за живеене. СТРОИТЕЛСТВО: Разположен на 3-ти етаж в сграда ново строителство. РАЗПРЕДЕЛЕНИЕ: Жилището разполага с площ от 73 кв. м., състои се от входно антре, дневна с кухненски бокс, спалня, баня с тоалетна, склад и тераса СЪСТОЯНИЕ: В строеж Заповядайте да Ви го покажем. Използвайки нашите услуги Вие ще превърнете закупуването на новия си дом в едно приятно изживяване, ще получите персонален консултант, съдействие при кандидатстване за кредит от всички банки в България, интериорни дизайнери и екип, който да се погрижи за нужните документи по Вашата сделка. На Ваше разположение сме всеки ден, от понеделник до неделя от 09:00 до 20:00ч. Възползвайте се от безплатна консултация в наш офис, където ще ви спестим време и ще ви запознаем с всички актуални имоти в България, отговарящи на Вашето търсене. Свържете се с нас на 088777990 или на 08******90 и цитирайте кода към имота: 979-28683

Тристаен апартамент в Каменица 1 Област Пловдив, гр. Пловдив, Каменица 1
262 900 €
2 504 € за м²
3-стаен 105 m² 5/6 ет

Компания 'Х' представя на Вашето внимание тристаен апартамент в кв. Каменица 1. МЕСТОПОЛОЖЕНИЕ: Една от добре установени жилищни зони в град Пловдив. Близо е до централните части на града, което го прави удобен за живеене и работа, кварталът е добре обслужван от обществен транспорт. В района има многообразие от магазини, супермаркети, аптеки и други удобства. В Каменица 1 се намират различни видове жилищни сгради от по-стари блокове до нови жилищни комплекси. В близост до квартала се намират някои от най-известните забележителности на Пловдив, като Античния театър и Стария град. Като цяло, Каменица 1 предлага добри условия за живот с удобен достъп до всичко необходимо и приятна среда за живеене. СТРОИТЕЛСТВО: Апартаментът се намира на 5-ти етаж, сграда ново строителство, тухла. РАЗПРЕДЕЛЕНИЕ: Разполага с площ от 105 кв. м. Апартаментът се състои от входно антре, всекидневна с кухненски бокс, две спални, баня и тоалетна, самостоятелна тоалетна и две тераси. СЪСТОЯНИЕ: В строеж. Заповядайте да Ви го покажем. Използвайки нашите услуги Вие ще превърнете закупуването на новия си дом в едно приятно изживяване, ще получите персонален консултант, съдействие при кандидатстване за кредит от всички банки в България, интериорни дизайнери и екип, който да се погрижи за нужните документи по Вашата сделка. На Ваше разположение сме всеки ден, от понеделник до неделя от 09:00 до 20:00ч. Възползвайте се от безплатна консултация в наш офис, където ще ви спестим време и ще ви запознаем с всички актуални имоти в България, отговарящи на Вашето търсене. Свържете се с нас на 08*********90 или на 08*********90 и цитирайте кода към имота: 850-24688

Двустаен апартамент в Кършияка Област Пловдив, гр. Пловдив, Кършияка
73 259 €
1 093 € за м²
2-стаен 67 m² 6/16 ет

Компания „X“ представя на Вашето внимание двустаен апартамент в кв. Кършияка. МЕСТОПОЛОЖЕНИЕ: Квартал Кършияка е един от най-големите и популярни квартали в град Пловдив. Кършияка е жилищен и търговски квартал, където може да се намерят множество жилищни сгради, магазини, ресторанти, кафенета, учебни заведения, паркове и други удобства. СТРОИТЕЛСТВО: Апартаментът се намира на 6-ти етаж в сграда ново строителство. РАЗПРЕДЕЛЕНИЕ: Жилището разполага с площ от 67 кв. м. разпределена по следния начин: дневна с трапезария и кухненски бокс, спалня, баня с тоалетна и тераса. СЪСТОЯНИЕ: В строеж. Заповядайте да Ви го покажем. Използвайки нашите услуги Вие ще превърнете закупуването на новия си дом в едно приятно изживяване, ще получите персонален консултант, съдействие при кандидатстване за кредит от всички банки в България, интериорни дизайнери и екип, който да се погрижи за нужните документи по Вашата сделка. На Ваше разположение сме всеки ден, от понеделник до неделя от 09:00 до 20:00ч. Възползвайте се от безплатна консултация в наш офис, където ще ви спестим време и ще ви запознаем с всички актуални имоти в България, отговарящи на Вашето търсене. Свържете се с нас на 08******90 или на 08******90 и цитирайте кода към имота: 1049- 30173

Двустаен апартамент Остромила 291-22111 Област Пловдив, гр. Пловдив, Остромила
84 612 €
1 209 € за м²
2-стаен 70 m² 5/5 ет

Компания Х представя на Вашето внимание двустаен апартамент в Остромила. МЕСТОПОЛОЖЕНИЕ: Зелените площи, парковете, цветята и приятната атмосфера могат да допринесат за по-високо качество на живот за жителите на квартала. СТРОИТЕЛСТВО: Рзположен на 5-ти етаж в сграда с модерен дизайн, построена през 2024 година. Апартаментът впечатлява със светлина и пространство с панорамни гледки към планината. РАЗПРЕДЕЛЕНИЕ: Жилището разполага с площ от 70кв. м., състои се от входно преддверие, дневна с кухня, спалня, баня с тоалетна. СЪСТОЯНИЕ: Жилището се предлага на шпакловка и замазка, което дава възможност на новите собственици да създадат своя нов ДОМ, придавайки му индивидуалност и стил. Заповядайте да Ви го покажем. Използвайки нашите услуги Вие ще превърнете закупуването на новия си дом в едно приятно изживяване, ще получите персонален консултант, съдействие при кандидатстване за кредит от всички банки в България, интериорни дизайнери и екип, който да се погрижи за нужните документи по Вашата сделка. На Ваше разположение сме всеки ден, от понеделник до неделя от 09:00 до 20:00ч. Възползвайте се от безплатна консултация в наш офис, където ще ви спестим време и ще ви запознаем с всички актуални имоти в България, отговарящи на Вашето търсене. Свържете се с нас нужен Вие само кодът на имотът: 291-22111

Тристаен апартамент в кв. Остромила 803-23691 Област Пловдив, гр. Пловдив, Остромила
130 650 €
1 005 € за м²
3-стаен 130 m² 2/4 ет

Компания „Х“ представя на Вашето внимание тристаен апартамент в кв. Остромила. МЕСТОПОЛОЖЕНИЕ: Кварталът разполага с добре развита инфраструктура, обществен транспорт, магазини, училища, детски градини и други удобства. В околността на квартала се намират няколко парка и зелени площи, които предлагат възможности за отдих и разходки на открито. Кварталът е подходящ за семейства с деца, като предлага спокойна и сигурна обстановка за живеене. СТРОИТЕЛСТВО: Разположен на 2-ри етаж в сграда ново строителство. РАЗПРЕДЕЛЕНИЕ: Жилището разполага с площ от 130 кв. м., състои се от дневна с кухненски бокс, две спални, две бани с тоалетна, килер и две тераси. СЪСТОЯНИЕ: В строеж. Заповядайте да Ви го покажем. Използвайки нашите услуги Вие ще превърнете закупуването на новия си дом в едно приятно изживяване, ще получите персонален консултант, съдействие при кандидатстване за кредит от всички банки в България, интериорни дизайнери и екип, който да се погрижи за нужните документи по Вашата сделка. На Ваше разположение сме всеки ден, от понеделник до неделя от 09:00 до 20:00ч. Възползвайте се от безплатна консултация в наш офис, където ще ви спестим време и ще ви запознаем с всички актуални имоти в България, отговарящи на Вашето търсене. Свържете се с нас на 088777990 или на 08******90 и цитирайте кода към имота: 803-23691

Двустаен апартамент Кършияка 629-20452 Област Пловдив, гр. Пловдив, Кършияка
68 727 €
996 € за м²
2-стаен 69 m² 4/9 ет

Компания X представя на Вашето внимание двустаен апартамент в кв. Кършияка. МЕСТОПОЛОЖЕНИЕ: Кършияка е един от най-старите квартали в град Пловдив, България. Той се намира в централната част на града и е известен със своята историческа атмосфера, архитектурни паметници и културни забележителности. СТРОИТЕЛСТВО: Апартаментът се намира на 4 етаж, тухла. РАЗПРЕДЕЛЕНИЕ: Жилището разполага с площ от 69 кв. м. дневна, кухня, спалня, баня и тоалетна, тераса, склад. СЪСТОЯНИЕ: В строеж. Заповядайте да Ви го покажем. Използвайки нашите услуги Вие ще превърнете закупуването на новия си дом в едно приятно изживяване, ще получите персонален консултант, съдействие при кандидатстване за кредит от всички банки в България, интериорни дизайнери и екип, който да се погрижи за нужните документи по Вашата сделка. На Ваше разположение сме всеки ден, от понеделник до неделя от 09:00 до 20:00ч. Възползвайте се от безплатна консултация в наш офис, където ще ви спестим време и ще ви запознаем с всички актуални имоти в България, отговарящи на Вашето търсене. Свържете се с нас на 08******90 /на цената на един градски разговор/ или на 08******90 и цитирайте кода към имота: 629-20452

Двустаен апартамен Остромила 732-22508 Област Пловдив, гр. Пловдив, Остромила
68 192 €
802 € за м²
2-стаен 85 m² 6/6 ет

Компания 'X' представя на Вашето внимание двустаен апартамент в кв. Остромила. МЕСТОПОЛОЖЕНИЕ: Кварталът е известен със своите спокойни улици, обширни паркове и зелени площи, които правят мястото подходящо за спокойни разходки и отдих. Остромила е също така популярен сред семействата заради приятната му обстановка и близостта до училища, детски градини и други удобства. СТРОИТЕЛСТВО: Апартаментът е разположен на 6-ти в тухлена сграда. РАЗПРЕДЕЛЕНИЕ: Коридор, дневна с кухненска част, спалня, баня с тоалетна, тераса с излаз към дневната, склад. Заповядайте да Ви го покажем. Използвайки нашите услуги Вие ще превърнете закупуването на новия си дом в едно приятно изживяване, ще получите персонален консултант, съдействие при кандидатстване за кредит от всички банки в България, интериорни дизайнери и екип, който да се погрижи за нужните документи по Вашата сделка. На Ваше разположение сме всеки ден, от понеделник до неделя от 09:00 до 20:00ч. Възползвайте се от безплатна консултация в наш офис, където ще ви спестим време и ще ви запознаем с всички актуални имоти в България, отговарящи на Вашето търсене. Свържете се с нас нужен Вие само кодът на имотът: 732-22509

Тристаен апартамент Остромила 592-22228 Област Пловдив, гр. Пловдив, Остромила
111 604 €
1 187 € за м²
3-стаен 94 m² 1/3 ет

Компания Х представя на Вашето внимание тристаен апартамент в кв. Остромила. МЕСТОПОЛОЖЕНИЕ: Кварталът разполага с добре развита инфраструктура, обществен транспорт, магазини, училища, детски градини и други удобства. В околността на квартала се намират няколко парка и зелени площи, които предлагат възможности за отдих и разходки на открито. Кварталът е подходящ за семейства с деца, като предлага спокойна и сигурна обстановка за живеене. СТРОИТЕЛСТВО: Рзположен на 1-ви етаж в сграда с модерен дизайн, построена през 2023 година. Апартаментът впечатлява със светлина и пространство с панорамни гледки. РАЗПРЕДЕЛЕНИЕ: Жилището разполага с площ от 115кв. м., състои се от всекидневна, две спални, баня и тоалетна, тоалетна, тераса. СЪСТОЯНИЕ: Жилището се предлага на шпакловка и замазка, което дава възможност на новите собственици да създадат своя нов ДОМ, придавайки му индивидуалност и стил. Заповядайте да Ви го покажем. Използвайки нашите услуги Вие ще превърнете закупуването на новия си дом в едно приятно изживяване, ще получите персонален консултант, съдействие при кандидатстване за кредит от всички банки в България, интериорни дизайнери и екип, който да се погрижи за нужните документи по Вашата сделка. На Ваше разположение сме всеки ден, от понеделник до неделя от 09:00 до 20:00ч. Възползвайте се от безплатна консултация в наш офис, където ще ви спестим време и ще ви запознаем с всички актуални имоти в България, отговарящи на Вашето търсене. Свържете се с нас на 088777990 или на 08******90 и цитирайте кода към имота: 592-22228

Тристаен апартамент Остромила 732-22475 Област Пловдив, гр. Пловдив, Остромила
102 910 €
850 € за м²
3-стаен 121 m² 5/6 ет

Компания 'X' представя на Вашето внимание тристаен апартамент в кв. Остромила. МЕСТОПОЛОЖЕНИЕ: Кварталът е известен със своите спокойни улици, обширни паркове и зелени площи, които правят мястото подходящо за спокойни разходки и отдих. Остромила е също така популярен сред семействата заради приятната му обстановка и близостта до училища, детски градини и други удобства. СТРОИТЕЛСТВО: Апартаментът е разположен на 5-ти етаж в тухлена сграда. РАЗПРЕДЕЛЕНИЕ: Коридор, дневна с кухненска част, две спални, баня с тоалетна, тоалетна, тераса с излаз към дневната, склад. Заповядайте да Ви го покажем. Използвайки нашите услуги Вие ще превърнете закупуването на новия си дом в едно приятно изживяване, ще получите персонален консултант, съдействие при кандидатстване за кредит от всички банки в България, интериорни дизайнери и екип, който да се погрижи за нужните документи по Вашата сделка. На Ваше разположение сме всеки ден, от понеделник до неделя от 09:00 до 20:00ч. Възползвайте се от безплатна консултация в наш офис, където ще ви спестим време и ще ви запознаем с всички актуални имоти в България, отговарящи на Вашето търсене. Свържете се с нас нужен Вие само кодът на имотът: 732-22475

Реф. 2777 Тристаен Апартамент / Гагарин
Реф. 2777 Тристаен Апартамент / Гагарин Област Пловдив, гр. Пловдив, Гагарин
111 360 €
960 € за м²
3-стаен 116 m² 10/10 ет

Референтен номер: 2777. НОВ МОДЕРЕН КОМПЛЕКС, СЪЧЕТАВАЩ ФУНКЦИОНАЛНОСТ, КОМФОРТ И УДОБСТВА ЗА ВСЯКО СЕМЕЙСТВО! ПРОЕКТА ВКЛЮЧВА 270 АПАРТАМЕНТА РАЗПРЕДЕЛЕНИ В 6 СЕКЦИИ ПО 10 ЕТАЖА СЪС ЗЕЛЕНИ ПЛОЩИ И ПОДЗЕМЕН ПАРКИНГ С 280 ПАРКОМЕСТА! ГЪВКАВИ УСЛОВИЯ НА ПЛАЩАНЕ! 5 РАВНИ ВНОСКИ ПО 20% ИЛИ 80% НА 20% С ОТСТЪПКА В ЦЕНАТА НА КВАДРАТ! Предлагаме ви да закупите тристаен апартамент в новострояща се жилищна сграда в кв. Гагарин! Основни характеристики на имота: - Площ: 115,97 кв. м - Разпределение: Просторна и светла дневна с трапезария и кухненски бокс 29 кв. м, две спални, две бани с тоалетни, мокро помещение, голямо входно антре и две тераси! Към апартамента има избено помещение 1,81 кв. м. - Вид строителство: Ново, Тухла - Изложение: Юг, Север - Етажност: 10 от 10 - Паркиране: Възможност за закупуване на подземно паркомясто или гараж. Състояние на имота: Апартамента ще бъде издаден на шпакловка и замазка, което ви позволява да си го отремонтирате и обзаведете по свой собствен вкус! Локация: Намира се на комуниикативна локация, в близост до Международен Панаир Пловдив, хипермаркети, детски градини, училища, спирки на градския транспорт и всичко необходимо за Вас и Вашето семейство! За повече информация и организиране на огледи, моля, свържете се с нас на посочения номер, като ще Ви е необходим следният референтен номер: 2777 Лайт Хоум имоти е доверен партньор на най-големите банкови институции в страната и съдейства за преференциални условия при нужда от кредитиране. Ще получите юридическо съдействие през целия процес на сделката, както и съдействие при подготовка, подаване и получаване на всички необходими документи за сделката.

Тристаен апартамент в Кършияка Област Пловдив, гр. Пловдив, Кършияка
114 156 €
1 057 € за м²
3-стаен 108 m² 2/10 ет

Компания „X“ представя на Вашето внимание тристаен апартамент в кв. Кършияка. МЕСТОПОЛОЖЕНИЕ: Квартал Кършияка е един от най-големите и популярни квартали в град Пловдив. Кършияка е жилищен и търговски квартал, където може да се намерят множество жилищни сгради, магазини, ресторанти, кафенета, учебни заведения, паркове и други удобства. СТРОИТЕЛСТВО: Апартаментът се намира на 2-ри етаж в сграда ново строителство. РАЗПРЕДЕЛЕНИЕ: Жилището разполага с площ от 108 кв. м. разпределена по следния начин: предверие, дневна с трапезария и кухненски бокс, две спални, две бани с тоалетни и тераса. СЪСТОЯНИЕ: В строеж. Заповядайте да Ви го покажем. Използвайки нашите услуги Вие ще превърнете закупуването на новия си дом в едно приятно изживяване, ще получите персонален консултант, съдействие при кандидатстване за кредит от всички банки в България, интериорни дизайнери и екип, който да се погрижи за нужните документи по Вашата сделка. На Ваше разположение сме всеки ден, от понеделник до неделя от 09:00 до 20:00ч. Възползвайте се от безплатна консултация в наш офис, където ще ви спестим време и ще ви запознаем с всички актуални имоти в България, отговарящи на Вашето търсене. Свържете се с нас на 08******90 или на 08******90 и цитирайте кода към имота: 629- 20353

Нов тристаен в Тракия 69002 Област Пловдив, гр. Пловдив, Тракия
135 000 €
1 709 € за м²
3-стаен 79 m²

Компания 'Х' представя на Вашето внимание тристаен апартамент в Тракия! МЕСТОПОЛОЖЕНИЕ: Тракия е един от най-големите и модерни жилищни комплекси в град Пловдив. Намира се в източната част на града и е известен със своето добро планиране, удобства и лесен достъп до центъра и други райони. РАЗПРЕДЕЛЕНИЕ: Площ от 79 кв. м, разпределени между хол с кухня, две спални, дрешник, баня с тоалтна, предверие, веранда. СЪСТОЯНИЕ: С възможност за закупуване на гараж на цена от 26 000 евро. Към имота има веранда с квадратура 56 кв. м. Заповядайте да Ви го покажем. Използвайки нашите услуги Вие ще превърнете закупуването на новия си дом в едно приятно изживяване, ще получите персонален консултант, съдействие при кандидатстване за кредит от всички банки в България, интериорни дизайнери и екип, който да се погрижи за нужните документи по Вашата сделка. На Ваше разположение сме всеки ден, от понеделник до неделя от 09:00 до 20:00ч. Възползвайте се от безплатна консултация в наш офис, където ще ви спестим време и ще ви запознаем с всички актуални имоти в България, отговарящи на Вашето търсене. Свържете се с нас на 08*********90 или на 08*********90 и цитирайте кода към имота: 69002

Тристаен апартамент Кършияка 667-22938 Област Пловдив, гр. Пловдив, Кършияка
99 289 €
1 241 € за м²
3-стаен 80 m² 1/6 ет

Компания X представя на Вашето внимание тристаен апартамент в кв. Кършияка. МЕСТОПОЛОЖЕНИЕ: Кършияка е един от най-старите квартали в град Пловдив, България. Той се намира в централната част на града и е известен със своята историческа атмосфера, архитектурни паметници и културни забележителности. СТРОИТЕЛСТВО: Апартаментът се намира на 1-вв и етаж, тухла. РАЗПРЕДЕЛЕНИЕ: Жилището разполага с площ от 80кв. м. дневна, кухня, две спални, две бани с тоалетна, склад, тераса. СЪСТОЯНИЕ: В строеж. Заповядайте да Ви го покажем. Използвайки нашите услуги Вие ще превърнете закупуването на новия си дом в едно приятно изживяване, ще получите персонален консултант, съдействие при кандидатстване за кредит от всички банки в България, интериорни дизайнери и екип, който да се погрижи за нужните документи по Вашата сделка. На Ваше разположение сме всеки ден, от понеделник до неделя от 09:00 до 20:00ч. Възползвайте се от безплатна консултация в наш офис, където ще ви спестим време и ще ви запознаем с всички актуални имоти в България, отговарящи на Вашето търсене. Свържете се с нас на 08******90 /на цената на един градски разговор/ или на 08******90 и цитирайте кода към имота: 667-22938

Тристаен апартамент Кършияка 667-22937 Област Пловдив, гр. Пловдив, Кършияка
125 595 €
1 308 € за м²
3-стаен 96 m² 1/6 ет

Компания X представя на Вашето внимание тристаен апартамент в кв. Кършияка. МЕСТОПОЛОЖЕНИЕ: Кършияка е един от най-старите квартали в град Пловдив, България. Той се намира в централната част на града и е известен със своята историческа атмосфера, архитектурни паметници и културни забележителности. СТРОИТЕЛСТВО: Апартаментът се намира на 1-ви и етаж, тухла. РАЗПРЕДЕЛЕНИЕ: Жилището разполага с площ от 96кв. м. дневна, кухня, две спални, две бани с тоалетна, склад, тераса. СЪСТОЯНИЕ: В строеж. Заповядайте да Ви го покажем. Използвайки нашите услуги Вие ще превърнете закупуването на новия си дом в едно приятно изживяване, ще получите персонален консултант, съдействие при кандидатстване за кредит от всички банки в България, интериорни дизайнери и екип, който да се погрижи за нужните документи по Вашата сделка. На Ваше разположение сме всеки ден, от понеделник до неделя от 09:00 до 20:00ч. Възползвайте се от безплатна консултация в наш офис, където ще ви спестим време и ще ви запознаем с всички актуални имоти в България, отговарящи на Вашето търсене. Свържете се с нас на 08******90 /на цената на един градски разговор/ или на 08******90 и цитирайте кода към имота: 667-22937

Двустаен апартамент Христо Смирненски 683-21646 Област Пловдив, гр. Пловдив, Христо Смирненски
88 908 €
1 201 € за м²
2-стаен 74 m² 1/8 ет

Компания Х представя на Вашето внимание двустаен апартамент в кв. Христо Смирненски. МЕСТОПОЛОЖЕНИЕ: Христо Смирненски е един от живописните квартали в град Пловдив. Той е разположен в източната част на града. Животът там е спокоен и уютен, подходящ за семейства и хора, които търсят комфорт и удобство. Кварталът е добре свързан с другите части на града чрез обществен транспорт и пътища, което улеснява движението на жителите му до различни дестинации в града и извън него. СТРОИТЕЛСТВО: Разположен на 1-ви етаж в тухлена сграда. РАЗПРЕДЕЛЕНИЕ: Жилището разполага с площ от 74кв. м., дневна с трапезария и кухненски бокс, спалня, баня с тоалетна, тераса. СЪСТОЯНИЕ: Жилището се предлага на шпакловка и замазка, което дава възможност на новите собственици да създадат своя нов ДОМ, придавайки му индивидуалност и стил. Заповядайте да Ви го покажем. Използвайки нашите услуги Вие ще превърнете закупуването на новия си дом в едно приятно изживяване, ще получите персонален консултант, съдействие при кандидатстване за кредит от всички банки в България, интериорни дизайнери и екип, който да се погрижи за нужните документи по Вашата сделка. На Ваше разположение сме всеки ден, от понеделник до неделя от 09:00 до 20:00ч. Възползвайте се от безплатна консултация в наш офис, където ще ви спестим време и ще ви запознаем с всички актуални имоти в България, отговарящи на Вашето търсене. Свържете се с нас нужен Вие само кодът на имотът: 683-21646

Двустаен апартамент Тракия Област Пловдив, гр. Пловдив, Тракия
89 030 €
1 391 € за м²
2-стаен 64 m² 2/10 ет

Компания Х представя на Вашето внимание двустаен апартамент в Тракия. МЕСТОПОЛОЖЕНИЕ: Тракия предлага приятни зелени площи, паркове, които са подходящи за разходки и отдих. В квартала има добре развита инфраструктура, която включва удобен транспорт, училища, детски градини, спортни съоръжения и медицински заведения. СТРОИТЕЛСТВО: Разположен на 2-ти етаж в сграда с модерен дизайн, построена през 2024 година. Апартаментът впечатлява със светлина и пространство с панорамни гледки. РАЗПРЕДЕЛЕНИЕ: Жилището разполага с площ от 64 кв. м., състои се от дневна с трапезария, спалня, баня, тоалетна, тераса. СЪСТОЯНИЕ: Жилището се предлага на шпакловка и замазка, което дава възможност на новите собственици да създадат своя нов ДОМ, придавайки му индивидуалност и стил. Заповядайте да Ви го покажем. Използвайки нашите услуги Вие ще превърнете закупуването на новия си дом в едно приятно изживяване, ще получите персонален консултант, съдействие при кандидатстване за кредит от всички банки в България, интериорни дизайнери и екип, който да се погрижи за нужните документи по Вашата сделка. На Ваше разположение сме всеки ден, от понеделник до неделя от 09:00 до 20:00ч. Възползвайте се от безплатна консултация в наш офис, където ще ви спестим време и ще ви запознаем с всички актуални имоти в България, отговарящи на Вашето търсене. Свържете се с нас на 088777990 или на 08******90 и цитирайте кода към имота: 435-18121

Реф. 3119 Многостаен Апартамент ОУ
Реф. 3119 Многостаен Апартамент ОУ Област Пловдив, гр. Пловдив, Кючук Париж
163 200 €
1 444 € за м²
113 m² 7/8 ет

Референтен номер: 3119. РЕАЛНИ КВАДРАТИ! ОУ ” ДИМИТЪР ТАЛЕВ” Предлагаме ви да закупите многостаен обзаведен апартамент в кв. Кючук Париж! Основни характеристики на имота: - Площ: 102кв. м + таванско 8кв. + 3кв. м изба - Разпределение: Голям и просторен хол, кухня, трапезария, две спални, баня с тоалетна, отделно тоалетна, голям коридор и две тераси, едната от които е остъклена. Към апартамента има прилежащо избено и таванско помещение. - Вид строителство: Тухла - Изложение: Изток, Запад - Етажност: 7 от 9 - Паркиране: Свободно паркиране Състояние на имота: Апартамента се продава, във вида от снимките, без съвременни подобрения, което ви позволява да си го отремонтирате по свой собствен вкус! Жилището е със сменена дограма и вътрешна и външна изолация. Локация: Намира се на комуникативна локация в близост до детски градини, училища, спирки на градския транспорт, хипермаркети и всичко необходимо за Вас и Вашето семейство! За повече информация и организиране на огледи, моля, свържете се с нас на посочения номер, като ще Ви е необходим следният референтен номер: 3119 Лайт Хоум имоти е доверен партньор на най-големите банкови институции в страната и съдейства за преференциални условия при нужда от кредитиране. Ще получите юридическо съдействие през целия процес на сделката, както и съдействие при подготовка, подаване и получаване на всички необходими документи за сделката.

ПРЕД АКТ 16! Тристаен апартамент НОВА СГРАДА кв. Кършияка
ПРЕД АКТ 16! Тристаен апартамент НОВА СГРАДА кв. Кършияка Област Пловдив, гр. Пловдив, Кършияка
169 600 €
1 600 € за м²
3-стаен 106 m² 3/15 ет

ПРЕДЛОЖЕНИЕ ОТ „DELUXE HOMES“ Имаме удоволствието да ви представим тристаен апартамент в НОВА СГРАДА с АКТ 14 в кв. Кършияка. • Основни характеристики: Разпределение: вх. антре, дневна с кухненски бокс и трапезария, спалня, спалня, баня и тоалетна, тоалетна, склад и балкон Доставяме резултатите, които сме обещали. Създаваме очаквания на клиентите си, които можем да посрещнем. Инвестираме доверие, както в екипа си, така и в клиентите си. ”Deluxe Homes” предлага: • Посредничество при покупка и продажба на недвижим имот. • Сътрудничество за всякакъв вид кредитиране. • Управление на имоти. • Юридическо съдействие. • Следпродажбени услуги. • Безплатна консултация в наш офис. • Работно време всеки ден от 08:00 до 21:00. Не пропускайте възможността да разгледате този имот! Свържете се с нас за допълнителна информация и уговаряне на огледи! КОД НА ОБЯВАТА: 141567

Отворете картата Карта