1 037 обекта

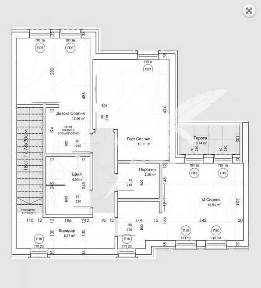
Двуетажна къща в Марково 375-13630
Двуетажна къща в Марково 375-13630 Област Пловдив, с. Марково
26 599 288 136 000 лв
26 599 288 136 000 лв за м²
144 m²

Компания X представя на Вашето внимание къща в Марково. МЕСТОПОЛОЖЕНИЕ: Село Марково е в непосредствена близост до град Пловдив. То е разположено на около 8 километра североизточно от центъра на Пловдив. РАЗПРЕДЕЛЕНИЕ: Къщата разполага с площ от 144 кв. м. разпределена в два етажа. Първи етаж дневна, кухня и трепезария, тоалетна, входно антре, склад. Втори етаж три спални, две бани с тоалетна, перално помещение, тереса. СЪСТОЯНИЕ: В строеж. Заповядайте да Ви го покажем. Използвайки нашите услуги Вие ще превърнете закупуването на новия си дом в едно приятно изживяване, ще получите персонален консултант, съдействие при кандидатстване за кредит от всички банки в България, интериорни дизайнери и екип, който да се погрижи за нужните документи по Вашата сделка. На Ваше разположение сме всеки ден, от понеделник до неделя от 09:00 до 20:00ч. Възползвайте се от безплатна консултация в наш офис, където ще ви спестим време и ще ви запознаем с всички актуални имоти в България, отговарящи на Вашето търсене. Свържете се с нас на 08******90 /на цената на един градски разговор/ или на 08******90 и цитирайте кода към имота: 375-13630

Триетажна къща в Брестовица
Триетажна къща в Брестовица Област Пловдив, с. Брестовица
64 542 390 330 000 лв
64 542 390 330 000 лв за м²
160 m²

Титан Пропъртис представя на Вашето внимание триетажна къща в село Брестовица, в близост до гр. Пловдив. Имотът разполага с площ от 160 кв. м. като разпределението на имота е следното: Първият етаж е помещение, което е разработено за аптека; на втори и трети етаж има дневна, две спални, баня с тоалетна, килер и голяма покрита тераса. Отопление и охлаждане е осигурено с климатици и котел на пелети. Двора има гараж, място за автомобили и възможност за басейн. За оглед на това и други атрактивни предложения, не се колебайте да ни потърсите на посочения телефон или да ни изпратите данните си чрез формата за запитване на сайта. Реф. номер: 81571

Реф. 2148 Двуетажна Къща / Радиново
Реф. 2148 Двуетажна Къща / Радиново Област Пловдив, с. Радиново
50 851 580 260 000 лв
219 187 845 948 лв за м²
232 m²

Реф. номер: 2148 20% НА ДОГОВОР, 80 % НА АКТ 16! СОБСТВЕН ДВОР 280 кв. м! ДВЕ ПАРКОМЕСТА! ЧЕТИРИ СПАЛНИ! Предлагаме ви двуетажна новострояща се къща в луксозен жилищен комплекс в с. Радиново! Основни характеристики на имота: - Площ: 232 кв. м ЗП + 280 кв. м двор - Разпределение: Етаж 1 (111 кв. м): Просторен хол с кухненски бокс, спалня, баня с тоалетна, техническо помещение, входно антре, перално помещение, веранда и двор, Етаж 2: Три спални, едната от които с дрешник, две бани с тоалетни, коридор, килер и тераса - Вид строителстово: Тухла 2025г. - Етажност: Двуетажна къща - Паркиране: Две паркоместа включени в цената Къщата, която ви предлагаме да закупите е процес на строеж, като въвеждането в експлоатация (Акт 16) се очаква октомври месец 2025г. Имотът се строи с внимание към дейтала и се използват висококачествени материали и иновативни решения, които гарнтират устойчивост, енергийна ефективност и изискан стил! Система за Smart Home е заложена в изпълнението на проекта! Чудесен дом, за вас и вашето семейство! За повече информация и организиране на огледи, моля, свържете се с нас на посочения номер, като ще Ви е необходим следният референтен номер: 2148 Лайт Хоум имоти е доверен партньор на най-големите банкови институции в страната и съдейства за преференциални условия при нужда от кредитиране. Ще получите юридическо съдействие през целия процес на сделката, както и съдействие при подготовка, подаване и получаване на всички необходими документи за сделката.

Реф. 2695 Двуетажна обзаведена къща гр. Кричим
Реф. 2695 Двуетажна обзаведена къща гр. Кричим Област Пловдив, гр. Кричим
44 006 175 225 000 лв
174 627 679 464 лв за м²
252 m²

Реф. номер: 2695 ОБЗАВЕДЕНА! ГАРАЖ! ЧЕТИРИ СПАЛНИ! ПАНОРАМНА ГЛЕДКА! ДВОР 735 КВ. М! Предлагаме ви двуетажна обзаведена къща с мансарден етаж, гараж и двор в гр. Кричим! Основни характеристики на имота: - Площ: 252 кв. м + 735 кв. м двор - Разпределение: На първи етаж: Хол и трапезария, отделна кухня, тоалетна, мокро помещение, склад, работилница и гараж с топла връзка На втори етаж: Четири спални, всяка от които с тераса, баня с тоалетна Мансарден етаж: Хол с кухненски бокс, тоалетна и тераса - Вид строителство: Тухла - Етажност: Двуетажна къща + мансарден етаж - Паркиране: Гараж + паркоместа Къщата се проадава с наличното обзавеждане, което ви дава възможността да се нанесете веднага! В двора е подготвено място за голям басейн! За повече информация и организиране на огледи, моля, свържете се с нас на посочения номер, като ще Ви е необходим следният референтен номер: 2695 Лайт Хоум имоти е доверен партньор на най-големите банкови институции в страната и съдейства за преференциални условия при нужда от кредитиране. Ще получите юридическо съдействие през целия процес на сделката, както и съдействие при подготовка, подаване и получаване на всички необходими документи за сделката.

Реф. 936 Етаж от къща / село Първенец
Реф. 936 Етаж от къща / село Първенец Област Пловдив, с. Първенец
33 248 914 169 999 лв
332 489 141 700 лв за м²
100 m² 3 ет

Реф. номер: 936 НАПЪЛНО ОБЗАВЕДЕН ЕТАЖ ОТ КЪЩА В СЕЛО ПЪРВЕНЕЦ Предлагаме Ви да закупите напълн ОБЗАВЕДЕН ЕТАЖ ОТ КЪЩА само на минути от центърса на град Пловдив. Основни характеристики: -Площ- 100кв. м. -Разпределение- просторен хол, кухненски бокс, две големи спални, санитарен възел, входно антре, тераса, ДВА ГАРАЖА и прилежащи помещения. -Вид строителство- тухла -Етажност- 4ти от 4 етажа Жилището се продава напълно обзаведено и оборудвано с всички необходими мебели и Ел уреди необходимо за едно съвременно семейство. Както и много други подобрения за още по - голямо удобстео. Локация: Локацията предлага много чист въздух и панорамни гледки, само на няколко минути от големия град. За повече информация и организиране на огледи, моля, свържете се с нас на посочения номер, като ще Ви е необходим следният референтен номер: 936 Лайт Хоум имоти е доверен партньор на най-големите банкови институции в страната и съдейства за преференциални условия при нужда от кредитиране. Ще получите юридическо съдействие през целия процес на сделката, както и съдействие при подготовка, подаване и получаване на всички необходими документи за сделката.

Луксозна къща в село Марково
Луксозна къща в село Марково Област Пловдив, с. Марково
166 245 550 850 000 лв
166 245 550 850 000 лв за м²
400 m²

Компания за недвижими имоти ”Deluxe Homes” има удоволствието да Ви представи ЛУКСОЗНО ОБЗАВЕДЕНА КЪЩА в село Марково. • Основни характеристики: Разпределение: • На първи етаж са разположени баня и тоалетна, 1 спалня, кабинет, голяма кухня с хол, всекидневна и техническо помещение, веранда с камина с висока мебел и ниска мебел. • Втори етаж -1 спалня със собствена баня с тоалетна, още 2 спални и 1 баня с тоалетна на етажа. • Също така има таванско помещение. В двора има голям басейн и навес, които зимата могат да се затворят, както и отделно джакузи. ПРЕДИМСТВА: • Има инсталирана СОТ система и видео наблюдение като всичко може да се контролира от смартфон (умна къща). • Термопомпа с подово отопление въздух-вода на топло и студено. Стълбове за осветление на целия двор.UV лампа за вода. Пречиствателна станция, сонда на 50м, вода с обратна осмоза, омекотител за водата на къщата и басейна, филтрационна система, самостоятелна за басейна. Доставяме резултатите, които сме обещали. Създаваме очаквания на клиентите си, които можем да посрещнем. Инвестираме доверие, както в екипа си, така и в клиентите си. ”Deluxe Homes” предлага: • Посредничество при покупка и продажба на недвижим имот. • Сътрудничество за всякакъв вид кредитиране. • Управление на имоти. • Юридическо съдействие. • Следпродажбени услуги. • Безплатна консултация в наш офис. • Работно време всеки ден от 08:00 до 21:00. Не пропускайте възможността да разгледате този имот! Свържете се с нас за допълнителна информация и уговаряне на огледи! КОД НА ОБЯВАТА: 141136

10% сега - 90% на АКТ 16! Къща в село Белащица + ПАРКОМЯСТО
10% сега - 90% на АКТ 16! Къща в село Белащица + ПАРКОМЯСТО Област Пловдив, с. Белащица
38 921 017 199 000 лв
254 385 733 327 лв за м²
153 m²

ПРЕДЛОЖЕНИЕ ОТ „DELUXE HOMES“ Имаме удоволствието да ви представим двуетажна къща с паркомясто в село Белащица. Гъвкава схема на плащане: • 10% на предварителен договор • 90% на АКТ 16 ХАРАКТЕРИСТИКИ НА ИМОТА: Разпределение: • 1ви етаж: Просторен хол с кухненски бокс (50кв. м.) килер, тоалетна, входно антре и панорамна веранда. • 2ри етаж: Родителска спалня със собствен санитарен възел и гардеробна, две спални, баня с тоалетна и панорамна тераса Къщата ще се издава на степен на завършеност шпакловка и замазка, ВиК до тапа и Ел инсталация до ключ. Локация: село Белащица • Намира се на тиха и спокойна локация с панорамни гледки само на няколко минути от големия град. Доставяме резултатите, които сме обещали. Създаваме очаквания на клиентите си, които можем да посрещнем. Инвестираме доверие, както в екипа си, така и в клиентите си. ”Deluxe Homes” предлага: • Посредничество при покупка и продажба на недвижим имот. • Сътрудничество за всякакъв вид кредитиране. • Управление на имоти. • Юридическо съдействие. • Следпродажбени услуги. • Безплатна консултация в наш офис. • Работно време всеки ден от 08:00 до 21:00. Не пропускайте възможността да разгледате този имот! Свържете се с нас за допълнителна информация и уговаряне на огледи! КОД НА ОБЯВАТА: 142342

Къща с ФУРНА в село Марково
Къща с ФУРНА в село Марково Област Пловдив, с. Марково
93 860 282 479 900 лв
95 971 658 977 лв за м²
978 m²

ПРЕДЛОЖЕНИЕ ОТ „DELUXE HOMES“ Имаме удоволствието да ви представим емблематичен имот по Родопската яка, една къща, известна в с. Марково и не само там, като къщата с ФУРНА. Невероятен имот за хора, търсящи къща за живеене комбинирана с възможност за работещ бизнес на едно и също място! ХАРАКТЕРИСТИКИ НА ИМОТА: Разпределение: подземен етаж - четири големи помещения и две бани с тоалетни партерен етаж -търговска част с функционираща фурна, напълно оборудвана с квадратура-350 кв. м. разполагаща с всичко необходимо за функциониране като такава, състои се от магазинна част, производствена част, две съблекални, мъжка и дамска, бани с тоалетни, стая за почивка, различни помещения за производство, офис и голям гараж за 5 коли., На втори етаж -голям хол, отделна кухня с трапезария, две просторни спални, две големи остъклени тераси, коридор и баня с тоалетна. На трети етаж - четири просторни спални, кухня, баня с тоалетна и голяма тераса с невероятна гледка. Вид строителство - Тухла Етажност: Триетажна къща Паркиране: Гараж за 5 коли Година на строеж - 2000 г Доставяме резултатите, които сме обещали. Създаваме очаквания на клиентите си, които можем да посрещнем. Инвестираме доверие, както в екипа си, така и в клиентите си. ”Deluxe Homes” предлага: • Посредничество при покупка и продажба на недвижим имот. • Сътрудничество за всякакъв вид кредитиране. • Управление на имоти. • Юридическо съдействие. • Следпродажбени услуги. • Безплатна консултация в наш офис. • Работно време всеки ден от 08:00 до 21:00. Не пропускайте възможността да разгледате този имот! Свържете се с нас за допълнителна информация и уговаряне на огледи! КОД НА ОБЯВАТА: 141977

Къща Карлово 85949
Къща Карлово 85949 Област Пловдив, гр. Карлово
38 138 685 195 000 лв
174 948 097 225 лв за м²
218 m²

Компания 'Х' представя на Вашето внимание Къща в гр. Карлово. МЕСТОПОЛОЖЕНИЕ: Карлово е живописен град с богато културно-историческо наследство, разположен в полите на Стара планина. Къща в този район съчетава спокойствието на малкия град с добрата инфраструктура, чист въздух и близост до природата. Локацията е подходяща както за постоянно живеене, така и за инвестиция с възможност за развитие на туристическа или семейна среда. РАЗПРЕДЕЛЕНИЕ: Разполага с площ 218 кв. м.разгърната в следното функционално разпределение: две просторни и уютни спални, осигуряващи комфорт и спокойствие, светъл хол, подходящ за семейни събирания и посрещане на гости, както и всекидневна с кухненски бокс, която съчетава удобство и функционалност. Банята и тоалетната са добре разпределени, а терасата предлага приятно място за сутрешно кафе или вечерен отдих. Приземният етаж с площ от 85 кв. м. предоставя отлична възможност да бъде превърнат в традиционна механа, самостоятелно жилище или офис. Състои се от три стаи, коридор, баня и тоалетна, разполага с ток, вода и изводи за осветление и е подготвен за облицовка с дърво, което го прави изключително подходящ за създаване на уютна атмосфера или функционално пространство според вашите нужди. СЪСТОЯНИЕ: Имотът се предлага обзаведен. Разполагаме с КЛЮЧ за имота! Огледи са възможни в удобно за Вас време. Заповядайте да Ви го покажем. Използвайки нашите услуги Вие ще превърнете закупуването на новия си дом в едно приятно изживяване, ще получите персонален консултант, съдействие при кандидатстване за кредит от всички банки в България, интериорни дизайнери и екип, който да се погрижи за нужните документи по Вашата сделка. На Ваше разположение сме всеки ден, от понеделник до неделя от 09:00 до 20:00ч. Възползвайте се от безплатна консултация в наш офис, където ще ви спестим време и ще ви запознаем с всички актуални имоти в България, отговарящи на Вашето търсене. Свържете се с нас на 08******90 или на 08******90 и цитирайте кода към имота: 85949

Реф. 2605 Къща с Четири Спални и Гараж / Марково
Реф. 2605 Къща с Четири Спални и Гараж / Марково Област Пловдив, с. Марково
73 343 429 374 999 лв
303 072 022 211 лв за м²
242 m²

Реф. номер: 2605 ПРОСТОРНА КЪЩА С ЧЕТИРИ СПАЛНИ И ГАРАЖ В С. МАРКОВО Предлагаме Ви да закупите модерна нова къща с четири спални и гараж в с. Марково Основни характеристики: -Площ- 242кв. м. и двор 500кв. м. -Разпределение- 1ви етаж- Голям хол с трапезария и кухненски бокс, спалня, баня с тоалетна и гараж с топла връзка. 2ри етаж- Три самостоятелни спални от които едната със собствен санитарен възел и гардеробна, баня с тоалетна, мокро помещение и панорамна тераса. -Вид строителство- тухла 2026 Къщата се продава до степен на завършеност щпакловка и замазка ВиК на тапа и Ел инсталация до ключ. Така имате възможността да я обзаведете по свой собствен вкус и да я предвърнете в мечтаният от Вас дом! Локация: Намира се на тиха и спокойна локация с панорамни гледки и само на няколко минути от големия град. За повече информация и организиране на огледи, моля, свържете се с нас на посочения номер, като ще Ви е необходим следният референтен номер: 2605 Лайт Хоум имоти е доверен партньор на най-големите банкови институции в страната и съдейства за преференциални условия при нужда от кредитиране. Ще получите юридическо съдействие през целия процес на сделката, както и съдействие при подготовка, подаване и получаване на всички необходими документи за сделката.

Етаж от къща след ремонт с двор и допълнителни помещения - Пловдив, к
Етаж от къща след ремонт с двор и допълнителни помещения - Пловдив, к Област Пловдив, гр. Пловдив, Гагарин
35 204 940 180 000 лв
382 662 393 261 лв за м²
92 m² 2 ет

ОФЕРТА 5492 Предлагаме за продажба етаж от къща, построена през 1975 г., разположен в търсения квартал Гагарин в Пловдив. Имотът е след ремонт и е готов за нанасяне. Параметри: - Тип имот: Етаж от къща - Локация: Пловдив, кв. Гагарин - Година на строеж: 1975 - Застроена площ на жилищния етаж: 92 кв. м - Разпределение: общо 3 стаи, от които 2 спални; 1 баня с тоалетна; 1 балкон - Допълнителни помещения: - Стая/склад на етажа - Самостоятелна стая на приземния етаж - Двор: 78 кв. м, обособен като самостоятелна част; ще бъде заграден и с достъп единствено за собствениците на този имот Акценти: - След ремонт - чист и поддържан дом, готов за ползване - Практична планировка с две спални - Допълнителна приземна стая - удобна за кабинет, ателие, хоби или склад - Собствен обособен двор в града - идеален за отдих, озеленяване или кът за деца Подходящ за: - Семейства, търсещи простор и спокойствие - Купувачи, които желаят двор и допълнителни помещения към жилището - Комбинирано ползване - живеене и работа от дома За повече информация и огледи се свържете с нас.

Оферта 68570 ЕКСКЛУЗИВНО! Къща с двор в с. Цалапица, обл. Пловдив
Оферта 68570 ЕКСКЛУЗИВНО! Къща с двор в с. Цалапица, обл. Пловдив Област Пловдив, с. Цалапица
21 514 130 110 000 лв
21 514 130 110 000 лв за м²
120 m²

Оферта 68570 ЕКСКЛУЗИВНО! Къща с двор в с. Цалапица, обл. Пловдив Представяме Ви самостоятелна къща в село Цалапица само на минути от град Пловдив. Цена: 110 000 Площ на двора: 865 кв. м. Строителство: тухла Характеристики на имота: Частично сменена дограма Чисто нова масивна ограда Покривът е ремонтиран преди 2 години Къщата е за ремонт, което дава възможност за преустройство и обособяване според индивидуалните нужди Предимства: Просторен двор подходящ за озеленяване, градина или допълнително застрояване Добра локация в близост до гр. Пловдив Възможност за създаване на мечтан дом или къща за гости

Къща в село Богданица
Къща в село Богданица Област Пловдив, с. Богданица
1 075 706 555 000 лв
1 075 706 555 000 лв за м²
76 m²

Къща в с. Богданица, което се намира на 30 км от гр. Пловдив и на 14км. от гр. Асеновград. Намира се на централна асфалтирана улица почти до самия център. Състои се от спалня, хол, всекидневна кухня и баня с тоалетна върху площ от 76кв. м.Има гараж който се вижда на снимките, има и канализация. За повече информация на посочения телефон. Часно лице.

Масивна къща в близост до гр. Пловдив ! Имот без аналог на пазара !
Масивна къща в близост до гр. Пловдив ! Имот без аналог на пазара ! Област Пловдив, с. Граф Игнатиево
782 332 400 000 лв
2 005 980 513 лв за м²
390 m²

Грийн Хаус Имоти с голямо удоволствие Ви представя ЕКСКЛУЗИВНО МАСИВНА КЪЩА в с. Граф Игнатиево! САМО НА 15 км от Пловдив! Къщата се намира на изключително комуникативно и достъпно място с бърз достъп до главен път Пловдив-Карлово. Имотът се състои от изба с площ 130 кв. м, в която има инсталирано парно за отопление на целия имот. - Първият етаж с площ също 130 кв. м е напълно обзаведен и оборудван. Готов за живеене. Състои се от просторно входно антре, Т- образен коридор, просторен хол, отделна трапезария, отделна кухня, две големи самостоятелни спални, самостоятелна баня и самостоятелна тоалетна. Кухнята е изцяло оборудвана с кухненски мебели, печка, хладилник, аспиратор, котлони, голяма тераса с достъп до двора. На етажа има инсталирани 3 климатика, както и радиатори за отопление от локалното парно. - Вторият етаж е със същото разпределение, но е незавършен етаж, който при желание от новите собственици може да се довърши, обзаведе и да се ползва като самостоятелен жилищен етаж. Имотът разполага с таванско помещение, което има право да бъде надградено с още един самостоятелен етаж за живеене. Дворът е с площ 1268 кв. м като в 1000 кв. м от него има изградени масивни стъклени оранжерии с капково напояване за отглеждане на всякакъв вид земеделска продукция. Отделно от всичко това има построена лятна кухня с кухненски бокс, голяма трапезна маса, климатик, за семейни и приятелски сбирки в топлите летни вечери. Имотът е защитен със сигнално охранителна техника! Освен всичко това има построен отделен гараж с площ приблизително 50 кв. м за спокойното паркиране на поне две коли! Имот с ОГРОМЕН потенциал ! За да заявите час за оглед и повече информация за имота, моля обадете се на телефон 08******99 Цена на имота : 400 000 евро. Съдействаме и за банково кредитиране при най-добрите условия!

къща на 2 етажа с двор Област Пловдив, с. Богданица
1 271 289 565 000 лв
635 644 783 лв за м²
2000 m²

Продавам къща в село Богданица. Постройка 130 кв, двор 2 декара. Има кладенец. Стопанска постройка.

Реф. 2214 Еднофамилна къща с двор Рогош
Реф. 2214 Еднофамилна къща с двор Рогош Област Пловдив, с. Рогош
47 917 835 245 000 лв
204 777 073 697 лв за м²
234 m²

Реф. номер: 2214 САМОСТОЯТЕЛНА ЕДНОФАИМЛНА КЪЩА С ДВОР 520 КВ. М В КОМПЛЕКС ОТ 5 КЪЩИ! ОЧАКВАН АКТ 16 - МАРТ 2026г. ! Предлагаме ви еднофамилна къща със собствен двор в комплекс от пет къщи в с. Рогош! Основни характеистики на имота: - Площ: 234 кв. м + 520 кв. м двор - Разпределение: - 1 етаж: Голям хол с трапезария и кухненски бокс (38 кв. м), спалня (15 кв. м), баня с тоалетна (9 кв. м), перално помещение (3.2 кв. м), склад (2.4 кв. м), коридор и закрита веранда (30 кв. м) - 2 етаж: Три спални (17, 17 и 18 кв. м) + един дрешник (4 кв. м), две бани с тоалетни (5 и 5.50 кв. м) и тераса (7 кв. м) - Вид строителство: Тухла (с очакван Акт 16 през месец март 2026г. ) - Етажност: Двуетажна къща - Паркиране: Предвидени две паркоместа в двора на къщата Къщата се продава на степен на завършеност по БДС! Строи се с висококачествени материали: шест камерна PVC дограма със стъклопакет четири сезона, външна топлоизолация EPS 100мм, двускатен покрив с керемиди Брамак, 78 метра масивна плътна ограда и 17 метра ажурна ограда. Имотът ще има партида за ток, вода и канализация! За повече информация и организиране на огледи, моля, свържете се с нас на посочения номер, като ще Ви е необходим следният референтен номер: 2214 Лайт Хоум имоти е доверен партньор на най-големите банкови институции в страната и съдейства за преференциални условия при нужда от кредитиране. Ще получите юридическо съдействие през целия процес на сделката, както и съдействие при подготовка, подаване и получаване на всички необходими документи за сделката.

Самостоятелна къща с голям двор
Самостоятелна къща с голям двор Област Пловдив, с. Борец
623 909 831 900 лв
10 398 497 198 лв за м²
60 m²

Предлагаме самостоятелна къща с голямо дворно място и прилежащи стопански постройки, находяща се в село Борец, в самия център на селото. Къщата е двуетажна в външно стълбище, всеки от етажите се състои от две отделни стаи и коридор. Дворното място е оградено с масивна ограда. До имота има прекарана права и обратна вода с централна канализация.

Къща в Пловдив, област-с. Труд площ 160 цена 175000
Къща в Пловдив, област-с. Труд площ 160 цена 175000 Област Пловдив, с. Труд
34 227 025 175 000 лв
34 227 025 175 000 лв за м²
160 m²

Представяме Ви двуетажна къща на 10 мин от град Пловдив. Имота е с РЗП 160 кв. м. и се състои от 4 стаи на етаж и голям коридор. И на двата етажа има прекана питейна и обратна вода. Намира се в село Труд зад Читалището, на 10 минути с кола от град Пловдив. Селото е добре развито, с множество магазини, няколко заведения, фабрики, паркове и градинки за отдих. Има постоянен транспорт до всяка точка на град Пловдив. Към къщата има двор 1000 кв. м. и допълнителна постройка 50 кв. м Чудесен избор, ако търсите спокойствието на селото и забързания живот на града в едно. За по-голямо удобство в снимки сме приложили разпределение на имота. За повече информация обадете се на посочения телефонен номер!

Двуетажна къща в Руен Област Пловдив, с. Руен
30 315 365 155 000 лв
303 153 651 550 лв за м²
100 m²

Титан Пропъртис има удоволствието да Ви представи къща в село Руен на тихо и спокойно място. Имотът е двуетажен и разполага с площ от 100 кв. м., разгърната по следния практичен начин: Всекидневна с кухненски бокс, две спални, баня с тоалетна, тераса. Отоплението е електричество. За оглед на това и други атрактивни предложения, не се колебайте да ни потърсите на посочения телефон или да ни изпратите данните си чрез формата за запитване на сайта. Реф. номер: 59600

оф. 23138 Самостоятелна къща/ с. Цалапица
оф. 23138 Самостоятелна къща/ с. Цалапица Област Пловдив, с. Цалапица
38 275 398 195 699 лв
38 275 398 195 699 лв за м²
200 m²

оф. 23138 Предлагаме Ви САМОСТОЯТЕЛНА ДВУЕТАЖНА КЪЩА С ДВОР 3000 кв. м. в с. Цалапица, само на 15 км от гр. Пловдив. Къщата е със застроена площ от 160кв. м, разпределени в два етаж. ПЪРВИЯТ ЕТАЖ се стои от три самостоятелни стаи и се предлага необзаведен. ВТОРИЯТ ЕТАЖ е с три самостоятелни НАПЪЛНО ОБЗАВЕДЕНИ СТАИ - ВСЕКИДНЕВНА, КУХНЯ, СПАЛНЯ И БАНЯ С ТОАЛЕТНА. Къщата е оборудвана с висок клас електроуреди - климатик, 2 телевизора 65/75 инча и отделен телевизор за видио наблюдение. В имота има навес с площ от 45 кв. м. Около къщата има бетонирана площадка с площ 600кв. и място 10кв. м. за басейн. Пред самата къща има 10 декара общинска поляна. Уникално и спокойно място за живеене! Чудесен избор за Вашия нов дом! Авангард Риъл Естейт предлага Висока сигурност при покупка на имот и цялостно съдействие до финализиране на сделката пред нотариус.

Отворете картата Карта