оф. 22475 Тристаен Христо Смирненски
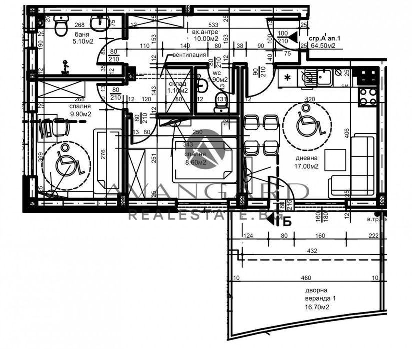
оф. 22475 ПРЕДЛАГАМЕ Ви да инвестирате във Вашето бъдеще. Стартови продажби на цени от 860 €кв. м. ( очаквана цена към акт 16 - 1500€+кв. м. или гарантирани над 50% марж на цената при задържане на сегашните нива на пазара). ЦЕНИ ОТ 860€ кв. м ДО 1100€кв. м! ФИКСИРАНА ЦЕНА БЕЗ ПРОМЯНА СПОРЕД ИНДЕКСАЦИИ ИЛИ ИНФЛАЦИЯ ДО КРАЯ НА СТРОИТЕЛСТВОТО ! ВЪЗМОЖНОСТ ЗА ПОКУПКА ЧРЕЗ БАНКОВ КРЕДИТ ! Предлагаме Ви апартаменти в новострояща се ниска сграда, разположена на тиха и спокойна локация в гр. Пловдив, кв. Христо Смирненски. Утвърден строител с 32г. опит, безупречна репутация и 40 построени и реализирани сгради ! Инвеститора строи върху свой терен, без обезщетение и със собствени средства БЕЗ КРЕДИТИ ! Цена на кв. м. от 860 € до 1100€ според етажа и изложението на апартамента. Едностайни апартаменти на цена от 49 799€ за 40кв. м. Двустайни апартаменти на цена от 53 499€ за 47кв. м. Тристайни апартаменти на цена от 83 499€ за 72кв. м. Възможност за покупка на надземни гаражи и паркоместа. Изключително удобна схема на плащане ! Разсрочено плащане в процес на строежа : - Първа вноска - 30% - при подписване на предварителен договор. - Втора вноска - 20% - на средата на сграда - Трета вноска - 20% - на акт 14 - Четвърта вноска - 20% - 3месеца след акт 14 - Пета вноска - 10% - когато е готова сградата АКТ 16 се очаква до април на 2027г. Авангард Риъл Естейт предлага Висока сигурност при покупка на имот и цялостно съдействие до финализиране на сделката пред нотариус.
Местоположение на картата






Обекти наблизо
- 99 600 €
- 84 m²
- 82 290 €
- 52 m²
- 103 999 €
- 76 m²
- 76 499 €
- 62 m²