20 пъти повече обяви от собственици

Събираме обяви от най-големите портали

Различаваме брокера от собственика по телефонния номер

Показваме как се е променяла цената

Премахваме дублиращите се обяви

Реф. 2335 Тристаен в Строеж / Тракия SPS

Област Пловдив, гр. Пловдив, Тракия
  • Обект BG-1338143183
  • добавен:
  • актуализиран:
снимка - Реф. 2335 Тристаен в Строеж / Тракия SPS снимка - Реф. 2335 Тристаен в Строеж / Тракия SPS снимка - Реф. 2335 Тристаен в Строеж / Тракия SPS снимка - Реф. 2335 Тристаен в Строеж / Тракия SPS
  • Пълен размер
  • Търсете подобни
снимка - Реф. 2335 Тристаен в Строеж / Тракия SPS снимка - Реф. 2335 Тристаен в Строеж / Тракия SPS снимка - Реф. 2335 Тристаен в Строеж / Тракия SPS снимка - Реф. 2335 Тристаен в Строеж / Тракия SPS

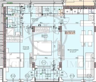
Реф. номер: 2335 МОДЕРЕН ЖИЛИЩЕН КОМПЛЕКС В РАЙОНА НА МОЛ ПЛАЗА И Х-Л SPS W КВ. ТРАКИЯ! Предлагаме ви тристаен апартамент в луксозен жилищен комплекс в кв. Тракия и в района на МОЛ Плаза, Х-л SPS и Кауфланд! Основни характеристики на имота: - Площ: 106.20 кв. м - Разпределение: Дневна с кухненски бокс, две спални, баня с тоалетна, тоалетна, антре, тераса и прилежащо избено помещение - Етажност: 3 ет. от 10 ет. (асансьор) - Изложение: Изток - Тип строителство: Тухла (Акт 16 е предвиден до края 2027г., началото на 2028г. ) В този новостроящ се луксозен жилищен комплекс се съчетава модерен дизайн и висококачествени строителни материали! Тук ще откриете комфорт и стил, които ще отговорят на всички ваши изисквания. Апартаментите са проектирани с внимание към детайла! В сградата са на разположение едностайни, двустайни и тристайни апартаменти! За повече информация и организиране на огледи, моля, свържете се с нас на посочения номер, като ще Ви е необходим следният референтен номер: 2335 Лайт Хоум имоти е доверен партньор на най-големите банкови институции в страната и съдейства за преференциални условия при нужда от кредитиране. Ще получите юридическо съдействие през целия процес на сделката, както и съдействие при подготовка, подаване и получаване на всички необходими документи за сделката.

Местоположение на картата

Обекти наблизо

Област Пловдив, гр. Пловдив, Тракия
Добави към предпочитани Двустаен апартамент Тракия
  • 103 000 €
  • 70 m²
Област Пловдив, гр. Пловдив, Тракия
Област Пловдив, гр. Пловдив, Тракия
Добави към предпочитани оф. 22676 АКТ 16! Тристаен Тракия
  • 139 199 €
  • 121 m²
Област Пловдив, гр. Пловдив, Тракия
Област Пловдив, гр. Пловдив, Тракия
Добави към предпочитани Реф. 2073 Тристаен Тракия
  • 137 700 €
  • 100 m²
Област Пловдив, гр. Пловдив, Тракия
Област Пловдив, гр. Пловдив, Тракия
Добави към предпочитани Реф. 3266 Тристаен Тракия / Акваленд
  • 129 999 €
  • 78 m²
Област Пловдив, гр. Пловдив, Тракия