20 пъти повече обяви от собственици

Събираме обяви от най-големите портали

Различаваме брокера от собственика по телефонния номер

Показваме как се е променяла цената

Премахваме дублиращите се обяви

Просторен тристаен апартамент зад The Mall, кв. Полигона

Област София-град, гр. София, Дружба 2
  • Обект BG-1356127278
  • добавен:
снимка - Просторен тристаен апартамент зад The Mall, кв. Полигона
  • Пълен размер
  • Търсете подобни
снимка - Просторен тристаен апартамент зад The Mall, кв. Полигона

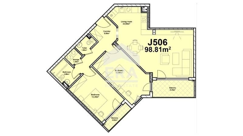
ПРОМОЦИОНАЛНА СХЕМА НА ПЛАЩАНЕ: 10% на Предварителен договор и 90% на АКТ 16! ЕРА Голд Ви представя новостроящ се жилищен комплекс с АКТ 16, в близост до The Mall, Мегапарк и бъдеща метростанция в кв. Полигона. Разпределение: Входно антре, дневна с кухненски бокс и трапезария 33.69 кв. м., 2 просторни спални, баня с тоалетна, отделна тоалетна, мокро помещение/склад и 2 балкона. Изложение: Изток. Обща площ: 116.62 кв. м. Застроена площ: 98.81 кв. м. За изграждането на сградата ще бъдат използвани съвременни и качествени технологии и материали. Характеристики на сградата: • Входно антре и стълбищните площадки - гранитогрес/теракот/ или др. • Асансьор. • Изградени връзки с възможност за доставка на кабелна телевизия и интернет. • Стените и таваните в общите помещения - гипсова шпакловка и латекс. • Външна топлоизолация на цялата сграда. • Монтирана входна врата на блока. • Вертикалната планировка - тротоари, озеленяване и градинско осветление. Апартаментите ще се издават по БДС: • циментова замазка на пода; • стени и тавани - гипсова шпакловка; • бани и тоалетни - мазилка на стени и таван; • тераси с гранитогрес /теракот/ или др.; • PVC дограма; • входна врата - метална с касова брава; • изпълнена ОВ инсталация до тапа; • изпълнена електрическа инсталация с монтирано апартаментно табло без заредени ключове и контакти; • изпълнена ВиК мрежа от полипропилен и PVC до тапа; • възможност за включване към инсталация за кабелна телевизия и телефон; • изградена домофонна и звънчева инсталация с монтирани тела. В допълнение има възможност за закупуване на паркоместа на цена от 30 000 евро и гаражи на цена 35 000 евро. Всички цени са с ДДС! Отлична локация на пешеходно разстояние от: • Детска градина и ясла „Вълшебното Борче“ • The Mall • Мегапарк • Магазин Mr. Bricolage • Офис на Спиди • СБАЛОБ „Зора“ • ProMarket - 400 метра • Университет по библиотекознание и информационни технологии • София Тех Парк Строителна компания с отлична репутация, постоянство и безспорно качество. Завършените проекти са еталон за качество и инвестиционен потенциал, предлагащи на собствениците дом без компромис комбинация от удобно местоположение, архитектурен дизайн, качество и функционалност. Сградата е с получен АКТ 15, АКТ 16 до края на 2025 г. CreditERA предоставя безплатна консултация и съдействие при финансиране на избрания от Вас имот от всички водещи банки в страната и ще договори най-добрите условия за вас! Оферта №4062568

Местоположение на картата

Обекти наблизо

Област София-град, гр. София, Люлин 10
Добави към предпочитани Тристаен апартамент в Люлин 10
  • 249 654 €
  • 123 m²
Област София-град, гр. София, Люлин 10
Област София-град, гр. София, Оборище
Добави към предпочитани Двустаен апартамент в Оборище
  • 265 000 €
  • 65 m²
Област София-град, гр. София, Оборище
Област София-град, гр. София, Център
Добави към предпочитани 3-стаен в София-Център
  • 265 000 €
  • 77 m²
Област София-град, гр. София, Център
Област София-град, гр. София, Банишора
Добави към предпочитани Просторен тристаен апартамент в Банишора с АКТ 14!
  • 337 900 €
  • 135 m²
Област София-град, гр. София, Банишора