163 обекта

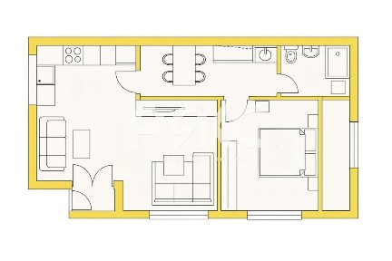
Двустаен апартамент в кв. Малинова долина - до ключ !
Двустаен апартамент в кв. Малинова долина - до ключ ! Област София-град, гр. София, Малинова долина
43 311 855 221 450 лв
562 491 626 253 лв за м²
2-стаен 77 m² 3/3 ет

ДО КЛЮЧ ! ВЪЗМОЖНОСТ ЗА ЗАКУПУВАНЕ НА ДВУСТАЙНИ ИЛИ ТРИСТАЙНИ АПАРТАМЕНТИ В СГРАДАТА ! Предлагаме двустаен апартамент с площ 77 кв. м, разположен на трети етаж от три в малка бутикова сграда в кв. Малинова долина. Сградата ще бъде завършена през 2027 г. Жилището разполага с добре организирани помещения и удобна основа за подредена домашна среда. Апартаментът ще се предлага „до ключ“, което осигурява завършен вид и готовност за използване. Във всяка стая е предвиден климатик, а към оборудването е включено и електрическо котле. Има възможност за закупуване на гараж. Проектът е планиран с висококачествено строителство, като инвеститорът е доказан с реализирани сгради, известни с надеждност и добър стандарт на изпълнение. Очакват се луксозни общи части, оформени с внимание към детайла и усещане за чиста и спокойна среда. Локацията в Малинова долина осигурява удобен достъп до основни пътни връзки, транспорт и услуги, а районът продължава да се развива с нова инфраструктура, което допринася за подреден и удобен квартал, подходящ за ежедневен живот. За повече информация и за организиране на оглед, не се колебайте да се свържете с нас. Ще се радваме да ви предоставим всички детайли и да уговорим удобен час за посещение на имота! Отговорен брокер Мария Стойнева 08******90

Едностаен апартамент в ж. к. Малинова долина
Едностаен апартамент в ж. к. Малинова долина Област София-град, гр. София, Малинова долина
1 464 916 774 900 лв
58 596 670 996 лв за м²
1-стаен 25 m² 2/4 ет

Революшън Естейт Ви представя едностаен апартамент в луксозен жилищен комплекс от две сгради В СТРОЕЖ в ж. к. Малинова долина. Комплексът е локализиран в близост до бул. Живко Сталев и Детска градина (190). - Имотът е разположен на втори жилищен етаж от общо четири. - Площ 25.64 кв. м. - Разпределение: входно антре, еднопространственно помещение с кухненски бокс и спален кът, баня с тоалетна. - Степен на завършеност към момента: В СТРОЕЖ. - Въвеждане в експлоатация: краят на 2026г. - Гъвкави схеми на плащане! - Предимства на комплекса: - Френски прозорци 5 камерна дограма с троен стъклопакет. - Вентилируема окачена фасада. - Контролиран достъп, жива охрана и система за видеонаблюдение. - Възможност за покупка на подземно паркомясто/ гараж с опция за монтиране на зарядна станция за електромобили. - Избор на етаж и изложение. За повече информация не се колебайте да се свържете с нас и през уикенда. Цитирайте референтен номер: 12662 в сграда с ID: 1010.

Двустаен апартамент в Малинова долина
Двустаен апартамент в Малинова долина Област София-град, гр. София, Малинова долина
43 028 260 220 000 лв
43 028 260 220 000 лв за м²
2-стаен 63 m² 5/8 ет

Агенция за недвижими имоти IGV Consult предлага за продажба луксозно обзаведен 2-стаен апартамент в жк Малинова долина. Сграда на доказал се строител с множество завършени обекти в района. Жилището се състои от антре, дневна стая с трапезария и кухненска част, спалня, баня с тоалетна и балкон. Изложение - Запад Отопление - ТЕЦ и климатик Без открити площи над апартамента. Продава се изцяло обзаведен с висок клас мебели и всички нужни електроуреди, готов за ползване! Има възможност за закупуване на подземни гаражи в сградата на цена 30 000 евро и складове. За пове1е информация и огледи: отговорен брокер - Мария Иванова - 08******04

Тристаен апартамент в кв. Малинова долина - до ключ !
Тристаен апартамент в кв. Малинова долина - до ключ ! Област София-град, гр. София, Малинова долина
54 763 240 280 000 лв
476 202 089 391 лв за м²
3-стаен 115 m² 1/3 ет

ДО КЛЮЧ ! ВЪЗМОЖНОСТ ЗА ЗАКУПУВАНЕ НА ДВУСТАЙНИ ИЛИ ТРИСТАЙНИ АПАРТАМЕНТИ В СГРАДАТА ! Предлагаме тристаен апартамент с площ 115 кв. м, разположен на първи етаж над гаражи в малка бутикова сграда в кв. Малинова долина. Сградата ще бъде завършена през 2027 г. Жилището разполага с добре организирани помещения и удобна основа за подредена домашна среда. Апартаментът ще се предлага „до ключ“, което осигурява завършен вид и готовност за използване. Във всяка стая е предвиден климатик, а към оборудването е включено и електрическо котле. Има възможност за закупуване на гараж. Проектът е планиран с висококачествено строителство, като инвеститорът е доказан с реализирани сгради, известни с надеждност и добър стандарт на изпълнение. Очакват се луксозни общи части, оформени с внимание към детайла и усещане за чиста и спокойна среда. Локацията в Малинова долина осигурява удобен достъп до основни пътни връзки, транспорт и услуги, а районът продължава да се развива с нова инфраструктура, което допринася за подреден и удобен квартал, подходящ за ежедневен живот. За повече информация и за организиране на оглед, не се колебайте да се свържете с нас. Ще се радваме да ви предоставим всички детайли и да уговорим удобен час за посещение на имота! Отговорен брокер Мария Стойнева 08******90

3-стаен в София-Малинова Долина площ 131 цена 222000
3-стаен в София-Малинова Долина площ 131 цена 222000 Област София-град, гр. София, Малинова долина
43 419 426 222 000 лв
43 419 426 222 000 лв за м²
3-стаен 131 m² 6/6 ет

ПАНОРАМНИ ГЛЕДКИВ БЛИЗОСТ ДО ХАЙ ПАРК/High park Bar and DinnerДО БЪДЕЩАТА МЕТРОСТАНЦИЯВ близост до Фантастико, Околовръстен път, Симеоновско шосе, НСА, Кауфланд, в близост до Симеоновско и спирката на автобуси 67 и 805, както и връзка с довеждащ транспорт с ел. маршрутки! АКТ 16 ДО КРАЯ НА 2025Г. ОТ АВГУСТ С ВОДА, ОТ СЕПТЕМВРИ С ТРАфОПОСТХОЛ 30,63 кв. м.СПАЛНЯ 1: 15,27 кв. м.СПАЛНЯ 2: 10,67 кв. м.БАНЯ 6 кв. м.СКЛАД/ДРЕШНИК/МОКРО 1,87 кв. м.Агенция за недвижими имоти Ориндж Естейт, представя на вашето внимание тристаен апартамент с панорамни гледки! Имотът е със ЗП 116,46 кв. м., ОЧ 14,53 кв. м. и обща площ 130,99 кв. м.изложения: всекидневна: югоизток/юг, спални: запад. Имотът ще бъде завършен до БДС стандарт, на шпакловка и замазка. ПОДЗЕМНО ПМ 15 000 ЕВРОПОДЗЕМЕН ГАРАЖ 22 000 ЕВРОплащане 10% на Акт 16. Гъвкава схема на плащане, в зависимост от сумата на финансиране и собствени средства. За огледи- Петя Аладжова- 08******35

Двустаен апартамент в ж. к. Малинова долина
Двустаен апартамент в ж. к. Малинова долина Област София-град, гр. София, Малинова долина
29 298 138 149 799 лв
29 298 138 149 799 лв за м²
2-стаен 65 m² 5/5 ет

Революшън Естейт Ви представя двустаен апартамент в затворен комплекс с АКТ 14 в ж. к. Малинова долина. Локация: бул. Климент Охридски на границата с Националната спортна академия и Студентски град. Имотът е разположен на 5-ти жилищен етаж от общо 5. Площ РЗП 65.13 кв. м. // ЗП 53.95 кв. м. Разпределение: Входно антре, всекидневна с кухненски бокс и трапезария, спалня, баня с тоалетна, склад и лоджия. Степен на завършеност: Етап 1: АКТ 14, завършване до края на 2026 г. Етап 2: В строеж, завършване до края на 2027 г. Етап 3: В строеж, завършване до края на 2027 г. Схема на плащане: 30% при подписване на Предварителен договор. 30% при АКТ 14. 30% при АКТ 15 и 10% при АКТ 16. За повече информация не се колебайте да се свържете с нас и да цитирате референтен номер: 11735 в сграда с ID: 951.

Двустаен пентхаус в кв. Малинова долина
Двустаен пентхаус в кв. Малинова долина Област София-град, гр. София, Малинова долина
36 965 187 189 000 лв
36 965 187 189 000 лв за м²
2-стаен 82 m² 5/5 ет

! ПЕНТХАУС ! ПАРКОМЕСТА ! Предлагаме двустаен апартамент на 5-ти етаж в модерна и спокойна жилищна сграда. впечатлява с две просторни тераси, които преобразяват дома в светло и приятно място за живеене, подходящо за релакс, зелена зона или уютно кътче на открито. Локацията е истинско предимство - бърз и удобен достъп до бул. „Симеоновско шосе“ и Околовръстния път, което ви свързва лесно с всяка част на града. Районът съчетава тишината на жилищна зона с всички градски удобства на една ръка разстояние: магазини, спортни центрове, куриерски офиси, университети и много други. За повече информация и за организиране на оглед, не се колебайте да се свържете с нас. Ще се радваме да ви предоставим всички детайли и да уговорим удобен час за посещение на имота! Отговорен брокер - Йордан Найденов 08******26

Тристаен апартамент в ж. к. Малинова долина № 1121 № 35136
Тристаен апартамент в ж. к. Малинова долина № 1121 № 35136 Област София-град, гр. София, Малинова долина
52 627 474 269 080 лв
52 627 474 269 080 лв за м²
3-стаен 120 m² 3/4 ет

Компания 'ЕКС' представя на Вашето внимание тристаен апартамент в ж. к. Малинова долина. МЕСТОПОЛОЖЕНИЕ: В близост до спирка на градски транспорт, детска градина, университети, магазини от всякакъв тип и всичко необходимо. СТРОИТЕЛСТВО: Апартаментът е ситуиран на 3-ти етаж в сграда ново строителство с АКТ 14. Очакван АКТ 16 през август 2026г. РАЗПРЕДЕЛЕНИЕ: Жилището разполага с площ от 120 кв. м., разпределена в предверие, дневна с трапезария и кухненска част, две спални помещения, баня с тоалетна, самостоятелна тоалетна, склад и две тераси. ОСОБЕНОСТИ: Към имота може да бъде закупен гараж. Заповядайте, да Ви го покажем. Използвайки нашите услуги, Вие ще превърнете закупуването на новия си дом в едно приятно изживяване, ще получите персонален консултант, съдействие при кандидатстване за кредит от всички банки в България, интериорни дизайнери и екип, който да се погрижи за нужните документи по Вашата сделка. На Ваше разположение сме всеки ден, от понеделник до неделя от 09:00 до 20:00ч. Възползвайте се от безплатна консултация в наш офис, където ще Ви спестим време и ще Ви запознаем с всички актуални имоти в България, отговарящи на Вашето търсене. Свържете се с нас на 08*********90 или на 08*********57 и цитирайте кода към имота: 1121-35136

Двустаен апартамент в ж. к. Малинова долина
Двустаен апартамент в ж. к. Малинова долина Област София-град, гр. София, Малинова долина
36 964 405 188 996 лв
528 062 931 271 лв за м²
2-стаен 70 m²

Революшън Естейт Ви представя двустаен апартамент в затворен комплекс С АКТ 14 в ж. к. Малинова долина. Локация: В непосредствена близост до бул. Св. Климент Охридски и Спортен комплекс на НСА. Имотът е разположен на партерен етаж. Площ РЗП 70.83 кв. м. // ЗП 59.74 кв. м. Разпределение: входно антре, всекидневна с кухненски бокс, спалня, баня с тоалетна, склад и двор - 15.81 кв. м. Изложение: Изток. Степен на завършеност: АКТ 14; Очаквано завършване: лятото 2026г. За повече информация не се колебайте да се свържете с нас и да цитирате референтен номер: 6040 в сграда с ID: 676.

Тристаен апартамент в ж. к. Малинова долина
Тристаен апартамент в ж. к. Малинова долина Област София-град, гр. София, Малинова долина
36 320 937 185 706 лв
36 320 937 185 706 лв за м²
3-стаен 94 m² 1/4 ет

Революшън Естейт Ви представя тристаен апартамент в комплекс от 4 сгради В СТРОЕЖ в ж. к. Малинова долина. Локация: В непосредствена близост до Околовръстен път, детска градина, училище и множество търговски обекти. Имотът е разположен на 1-ви жилищен етаж от общо 4. Площ РЗП 94.13 кв. м. // ЗП 80.83 кв. м. Разпределение: Входно антре, хол с кухненски бокс, две спални, две бани с тоалетни, склад и двор с площ - 52,44 кв. м. Степен на завършеност: В СТРОЕЖ; Очаквано завършване: 2027г. За повече информация не се колебайте да се свържете с нас и да цитирате референтен номер: 10222 в сграда с ID: 1017.

Тристаен, за продажба, ж.к. Малинова долина
Тристаен, за продажба, ж.к. Малинова долина Област София-град, гр. София, Малинова долина
59 355 333 303 479 лв
59 355 333 303 479 лв за м²
3-стаен 129 m² 4/4 ет

Титан Пропъртис - офис бул. България има удоволствието да Ви представи тристаен апартамент в кв. Малинова долина - комуникативно място, в близост, спирки на градски транспорт. Бърз и лесен достъп до булевард Климент Охридски и ул. Проф. Живко Сталев. Апартаментът е разположен на четвърти етаж от четири етажа. Сградата е на етап Акт 14 и се очаква да бъде въведена в експлоатация (акт 16) края на 2026г. Имотът разполага с площ от 129 кв. м. Разпределението както следва е: преддверие, хол с кухненски бокс, две спални, две бани с тоалетни, склад и две тераси. Изложението е изток/запад. Отоплението е предвидено да бъде на ток. Жилището се предлага на шпакловка и замазка, предоставяйки възможност за персонализация на интериора. Към имота има възможност за покупка на паркомясто на допълнителна цена. За повече информация или оглед на това и други предложения, моля, свържете се с нас на посочения телефон. Реф. Номер: 2092522

Двустаен апартамент в ж. к. Малинова долина № 1121 № 35127
Двустаен апартамент в ж. к. Малинова долина № 1121 № 35127 Област София-град, гр. София, Малинова долина
33 009 521 168 775 лв
440 126 948 917 лв за м²
2-стаен 75 m² 2/4 ет

Компания 'ЕКС' представя на Вашето внимание двустаен апартамент в ж. к. Малинова долина. МЕСТОПОЛОЖЕНИЕ: В близост до спирка на градски транспорт, детска градина, университети, магазини от всякакъв тип и всичко необходимо. СТРОИТЕЛСТВО: Апартаментът е ситуиран на 2-ри етаж в сграда ново строителство с АКТ 14. Очакван АКТ 16 през август 2026г. РАЗПРЕДЕЛЕНИЕ: Жилището разполага с площ от 75 кв. м., разпределена в предверие, дневна с трапезария и кухненска част, спално помещение, баня с тоалетна, склад и тераса. ОСОБЕНОСТИ: Към имота може да бъде закупен гараж. Заповядайте, да Ви го покажем. Използвайки нашите услуги, Вие ще превърнете закупуването на новия си дом в едно приятно изживяване, ще получите персонален консултант, съдействие при кандидатстване за кредит от всички банки в България, интериорни дизайнери и екип, който да се погрижи за нужните документи по Вашата сделка. На Ваше разположение сме всеки ден, от понеделник до неделя от 09:00 до 20:00ч. Възползвайте се от безплатна консултация в наш офис, където ще Ви спестим време и ще Ви запознаем с всички актуални имоти в България, отговарящи на Вашето търсене. Свържете се с нас на 08*********90 или на 08*********57 и цитирайте кода към имота: 1121-35127

2-стаен в София-Малинова Долина площ 63
2-стаен в София-Малинова Долина площ 63 Област София-град, гр. София, Малинова долина
43 028 260 220 000 лв
43 028 260 220 000 лв за м²
2-стаен 63 m² 5/7 ет

Реф. № 012640 Агенция за недвижими имоти BAS Properties предлага за продажба обзаведен двустаен апартамент - Ново строителство в жк. Малинова долина, разположен на 5-ти етаж в модерна тухлена сграда от 2025 г., пред АКТ 16. Имотът е висок клас, стилно и изцяло обзаведен, готов за нанасяне. Основни параметри: - Тип имот: Двустаен апартамент - Ново строителство - Площ: 63 кв. м. - Строителство: Тухла, 2025 г. - Етап: След АКТ 15 - Етаж: 5 от 7 - Отопление: ТЕЦ и електричество (климатик) - Изложение: Запад - Асансьор: Да Разпределение: - Антре - Всекидневна с трапезария и кухненски бокс - Спалня - Баня с тоалетна - Балкон Състояние: Апартаментът е луксозно обзаведен с висок клас мебели, вградени електроуреди и прецизно изпълнен интериор. Няма открити площи над имота, което гарантира комфорт и енергийна ефективност. Локация: Имотът се намира в една от най-предпочитаните зони на Малинова долина, с отлична инфраструктура от 09.2025 и бърз достъп до: - НСА - Бул. Симеоновско шосе - Търговски обекти и бъдещ супермаркет в самата сграда - Автобусни спирки, заведения, магазини - Районът е динамично развиващ се, с множество нови сгради и модерна градска среда. В сградата има възможност за закупуване на подземни гаражи. За оглед и повече информация - свържете се с нас! BAS Properties - професионално съдействие и безплатна консултация при кредитиране.

2-стаен в София-Малинова Долина площ 57м2 цена 136630€
2-стаен в София-Малинова Долина площ 57м2 цена 136630€ Област София-град, гр. София, Малинова долина
26 722 505 136 630 лв
468 815 879 590 лв за м²
2-стаен 57 m² 3/7 ет

АНИ-БО недвижими имоти продава ЮЖЕН, ДВУСТАЕН апартамент с обща площ - 58 кв. м. и ЗП 49.2 кв. м. на ТРЕТИ етаж, в новострояща се сграда с АКТ 14 и чл. 181 по ЗУТ, в кв. Малинова долина. Блокът се намира непосредствено до бул. Симеоновско шосе, Кауфланд, ДЕТСКА ГРАДИНА, елитни училища, комплекси за спорт и спирки на градския транспорт. В бъдеще предстои изграждането на метростанция на близкото кръстовище на бул. Симеоновско шосе и ул. Проф. Д-р Иван Странски. Разположение: входно антре, дневна с кухненски бокс, спалня, баня с тоалетна, и тераса. Изложение - ЮГ Възможно е закупуването на гараж, паркомясто и складово помещение. Апартаментът се предлага на етажи от 2-ри до 4-ти с различно изложение. Инвеститорът залага на висококачествени материали и технологии с цел постигане на максимална здравина и енергийна ефективност на сградата. АНИ-БО предлага гарантирано ипотечно кредитиране за този строител. Гъвкава схема за плащане. Цена 136.629 евро. Агенцията предлага двустайни и тристайни апартаменти в същата сграда. АНИ-БО недвижими имоти предлага цялостна правна и техническа помощ до окончателното финализиране на сделката ви в сферата на недвижимите имоти! Агенцията работи с 12 от най- големите банки на пазара и ще Ви помогне да намерите най-подходящия кредитен продукт според изискванията ви! За повече информация и огледи потърсете: Богомил Димитров 08******08

Двустаен апартамент в ж. к. Малинова долина № 923-27005 Област София-град, гр. София, Малинова долина
41 367 369 211 508 лв
41 367 369 211 508 лв за м²
2-стаен 98 m² 6/6 ет

Компания 'ЕКС' представя на Вашето внимание двустаен апартамент в един от най-бързо развиващите се райони на столицата- кв. Малинова долина. МЕСТОПОЛОЖЕНИЕ: В близост до спирка на градски транспорт, магазини от всякакъв тип, основни пътни артерии. СТРОИТЕЛСТВО: Апартаментът е ситуиран на 6-ти етаж в сграда ново строителство. РАЗПРЕДЕЛЕНИЕ: Жилището е с площ 98 кв. м., разпределена в дневна с кухненски бокс, трапезария и преддверие, спално помещение, баня с тоалетна и тераса. ОСОБЕНОСТИ: Към имота може да бъде закупено паркомясто. Заповядайте да Ви го покажем. Използвайки нашите, услуги Вие ще превърнете закупуването на новия си дом в едно приятно изживяване, ще получите персонален консултант, съдействие при кандидатстване за кредит от всички банки в България, интериорни дизайнери и екип, който да се погрижи за нужните документи по Вашата сделка. На Ваше разположение сме всеки ден, от понеделник до неделя от 09:00 до 20:00ч. Възползвайте се от безплатна консултация в наш офис, където ще Ви спестим време и ще Ви запознаем с всички актуални имоти в България, отговарящи на Вашето търсене. Свържете се с нас на 08*********90 или на 08*********57 и цитирайте кода към имота: 923-27005.

Двустаен апартамент в ж. к. Малинова долина № 923-27001 Област София-град, гр. София, Малинова долина
29 017 672 148 365 лв
29 017 672 148 365 лв за м²
2-стаен 96 m²

Компания 'ЕКС' представя на Вашето внимание двустаен апартамент в един от най-бързо развиващите се райони на столицата- кв. Малинова долина. МЕСТОПОЛОЖЕНИЕ: В близост до спирка на градски транспорт, магазини от всякакъв тип, основни пътни артерии. СТРОИТЕЛСТВО: Апартаментът е ситуиран на партерен етаж в сграда ново строителство. РАЗПРЕДЕЛЕНИЕ: Жилището е с площ 96,32 кв. м., разпределена в дневна с кухненски бокс, спално помещение, баня с тоалетна, склад и двор. ОСОБЕНОСТИ: Към имота може да бъде закупено паркомясто. Заповядайте да Ви го покажем. Използвайки нашите, услуги Вие ще превърнете закупуването на новия си дом в едно приятно изживяване, ще получите персонален консултант, съдействие при кандидатстване за кредит от всички банки в България, интериорни дизайнери и екип, който да се погрижи за нужните документи по Вашата сделка. На Ваше разположение сме всеки ден, от понеделник до неделя от 09:00 до 20:00ч. Възползвайте се от безплатна консултация в наш офис, където ще Ви спестим време и ще Ви запознаем с всички актуални имоти в България, отговарящи на Вашето търсене. Свържете се с нас на 08*********90 или на 08*********57 и цитирайте кода към имота: 923-27001.

Тристаен апартамент в ж. к. Малинова долина
Тристаен апартамент в ж. к. Малинова долина Област София-град, гр. София, Малинова долина
43 028 260 220 000 лв
426 022 378 416 лв за м²
3-стаен 101 m² 3/4 ет

Революшън Естейт Ви представя тристаен апартамент в нов жилищен комплекс от две сгради в ж. к. Малинова долина. В близост до бул. Живко Сталев и Детска градина (190). Имотът е разположен на трети жилищен етаж от общо четири етажа. Площ РЗП 101,05 кв. м. // ЗП 88,19 кв. м. Изложение: Запад / Юг. Разпределение: входно антре, всекидневна с кухненски бокс, две спални, две бани с тоалетни, дрешник и тераса. Степен на завършеност към момента: В СТРОЕЖ. Въвеждане в експлоатация: краят на 2026г. Плюсове: - Френски прозорци 5 камерна дограма с троен стъклопакет. - Вентилируема окачена фасада. - Контролиран достъп, жива охрана и система за видеонаблюдение. - Възможност за покупка на подземно паркомясто/ гараж с опция за монтиране на зарядна станция за електромобили. - Избор на етаж и изложение. Налични са едностайни, двустайни и тристайни апартаменти. За повече информация не се колебайте да се свържете с нас и през уикенда. Цитирайте референтен номер: 11400 в сграда с ID: 1010.

Тристаен, за продажба, ж. к. Малинова долина Област София-град, гр. София, Малинова долина
206 000 €
1 962 € за м²
3-стаен 105 m²

Титан Пропъртис - офис бул. България има удоволствието да Ви представи тристаен апартамент в кв. Малинова долина - комуникативно място, в близост, спирки на градски транспорт. Бърз и лесен достъп до булевард Симеоновско шосе и Околовръстен път. Апартаментът е разположен на първи партерен етаж от пет етажа. Сградата е на етап Акт 15 и се очаква да бъде въведена в експлоатация (акт 16) през 2026г Имотът разполага с площ от 105 кв. м. Разпределението както следва е: антре, хол с кухненски, две спални, две бани с тоалетни и двор. Изложението е изток/юг. Отоплението е предвидено да бъде на ток. Жилището се предлага на шпакловка и замазка, предоставяйки възможност за персонализация на интериора. Подходящ както за лично ползване, така и за инвестиция. Към имота има възможност за покупка на паркомясто на допълнителна цена. За повече информация или оглед на това и други предложения, моля, свържете се с нас на посочения телефон. Реф. Номер: 2096321

2-стаен в София-Малинова Долина площ 57 цена 208000
2-стаен в София-Малинова Долина площ 57 цена 208000 Област София-град, гр. София, Малинова долина
208 000 €
3 649 € за м²
2-стаен 57 m² 2/6 ет

Агенция ПОЗИТИВ ИМОТИ предлага за продажба 2-стаен апартамент със застроена площ 48 кв. м. (идеални части 9кв. м.) на цена от 208 000 EUR. Сградата се намира в ж. к. Малинова долина в Raspberry Park на пешеходно разстояние от супермаркети, Фантастико"и хипермаркет, Кауфланд" и бул. Симеоновско шосе. В района има спирка на градски транспорт (А102, А67, А805), а също така предстои изграждането на бъдеща метростанция. Апартамента се намира на 2-ри етаж от 6 етажна нова тухлена сграда с разрешение за ползване от 2025г. В строителството на сградата се използват: Стени - тухли Wienerberger за по-добра топло и шумоизолация Дограма - 6 камерна PVC, с троен стъклопакет. Блиндирани входни врати. Изолация - 10 сантиметра каменна вата. Покриви и тераси са двойно хидро и топло изолирани с XPS изолация. Окачена фасада - еталбонд с отлични изолационни свойства, който е устойчив на екстремни климатични условия и износване. Инсталации осигурени са звънчева, телефонна и домофонна система с видеонаблюдение, като са предвидени и включени мрежи за интерент и телевизия. Луксозни Общи части, Стълбищата са от цели, гранитни стъпала. Асансьор шестместен с автоматични врати, с възможност за влизане на детска количка. Разпределението на апартамента е както следва: входно антре, всекидневна с кухненски бокс, спалня, баня с тоалетна, мокро помещение и тераса. Жилището е обзаведено с висок клас електроуреди и мебели по поръчка. Отоплението е решено с климатици Mitsubishi. Ако имотът представлява интерес за Вас, моля свържете се с нас и посочете реф. номер 728. Съдействие при кандидатстване и отпускане на ипотечен и потребителски кредит, без допълнително оскъпяване /преференциални условия и лихви за клиенти на агенцията/

Тристаен апартамент в кв. Малинова долина
Тристаен апартамент в кв. Малинова долина Област София-град, гр. София, Малинова долина
290 565 €
2 252 € за м²
3-стаен 129 m² 4/4 ет

Хоум Лайт има удоволствието да Ви представи светъл и просторен тристаен апартамент с площ от 129 кв. м., разположен на четвърти етаж в модерна сграда от висок клас, част от затворен жилищен комплекс със съвременна визия и богата зеленина в кв. Малинова долина. Комплексът се намира в една от най-перспективните и озеленени градски зони - с отлична инфраструктура, лесен достъп до основни пътни артерии, близост до училища, детски градини, магазини и места за отдих, което го прави изключително подходящ за живеене. Жителите на комплекса ще се радват на вътрешен двор без автомобилен достъп, облагороден с декоративни растения, включително японски кленове, както и детски и спортни площадки, открит фитнес и зони за релакс. Жилището е с изключително функционално разпределение, проектирано с мисъл за удобство и комфорт. Състои се от входно антре с площ от 9.60 кв. м., просторна дневна с кухненски бокс с площ от 29.00 кв. м., две самостоятелни спални с площ съответно 18.09 кв. м. и 17.19 кв. м., две бани с тоалетни по 3.83 кв. м., складово помещение от 3.62 кв. м., както и две тераси по 4.05 кв. м., осигуряващи допълнително пространство за отдих. Отоплението и охлаждането се осъществяват чрез високоефективна система от термопомпи, гарантираща икономичност и комфорт през всички сезони. В стаите има и изводи за климатици. Към имота се предлагат и гаражи, достъпни срещу допълнително заплащане. Имотът е след АКТ 14, като жилищните сгради ще бъдат 3. АКТ 15 се очаква 2026г и АКТ 16 лятото на 2027г. За повече информация или организиране на огледи, моля цитирайте: 6412

Отворете картата Карта